今天和大家分享的这位业主是来自江西的吴总。吴总一九年七月初在我公司买过一款成品图纸="://www.lemeizhai.com/PictureShow.asp?PicID=1067&PicClassID=94" target="_self" style="font-family: 微软雅黑, "Microsoft YaHei"; font-size: 18px;">D502。回到老家,因家中不许建="://www.lemeizhai.com/Picture.asp?PicClassID=94" target="_self" title="四层房屋设计">四层房屋,又看到老家有位老乡建房。屋顶带有小亭子的设计。于是,又联系到我们,想定制设计一款="://www.lemeizhai.com/index.asp" target="_self" title="农村自建房">农村自建房屋顶带亭子的户型。

经过和设计师的多方面交流,敲定了旋转楼梯,和复式设计。如下图是为吴总设计的最终方案:
一层:

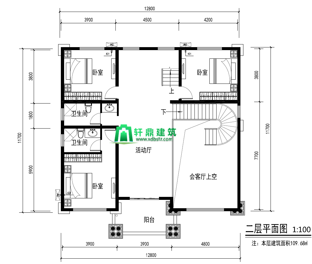
二层:

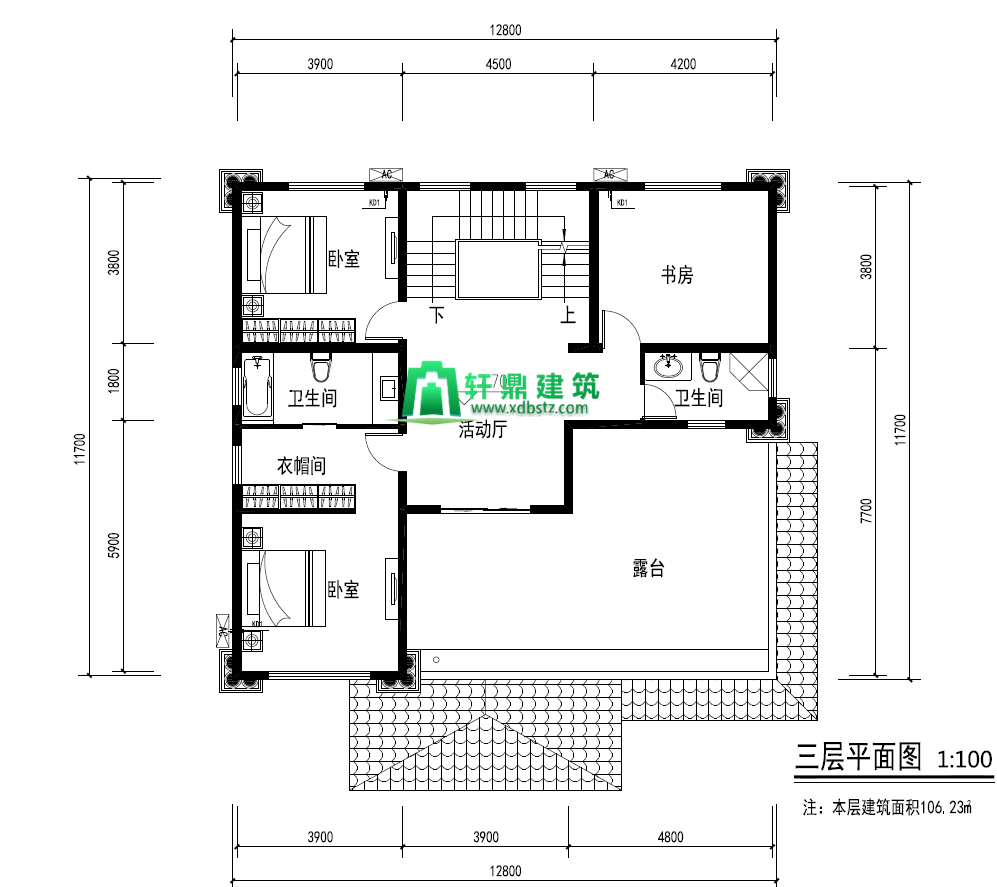
三层:

四层:

确认好最终的方案。为吴总安排了我们资深的效果图设计师。了解到吴总的需求后,为吴总设计的房屋高度在15米左右。一层层高4.2米,二层层高3.5米,三层层高3.5米。
正面效果图:

鸟瞰效果图;

侧面效果图:

背面效果图:

整体设计出来,吴总非常的认可。幕墙的设计,以及背面超多窗户,不担心任何采光问题,屋顶老虎窗以及小亭子。都是吴总所想的样子。
施工图的设计,完成了建筑,结构,排水,电气。用了五天左右全部设计完成。细节点都是非常的详细。

