今年年初,四川成都陈总通过淘宝联系到客服,想设计一款占地200平左右,带地下室的三层新中式风="://www.lemeizhai.com/Picture.asp?PicClassID=91" target="_self" title="新中式三层" style="font-family: 微软雅黑, "Microsoft YaHei"; font-size: 18px;">自建房。 通过和方案设计师的沟通, 陈总需求卧室比较多,在一楼设计走廊以及露台。
负一层平面图:

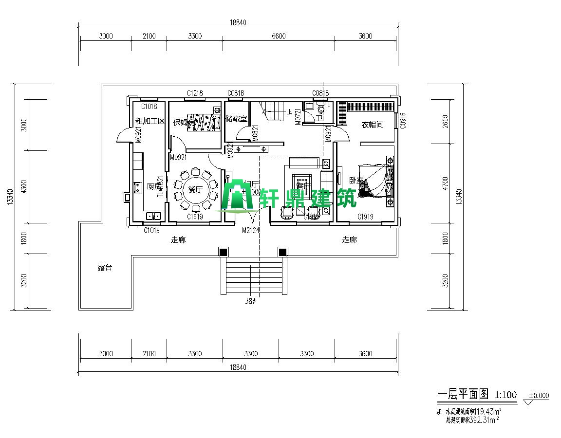
一层平面图:

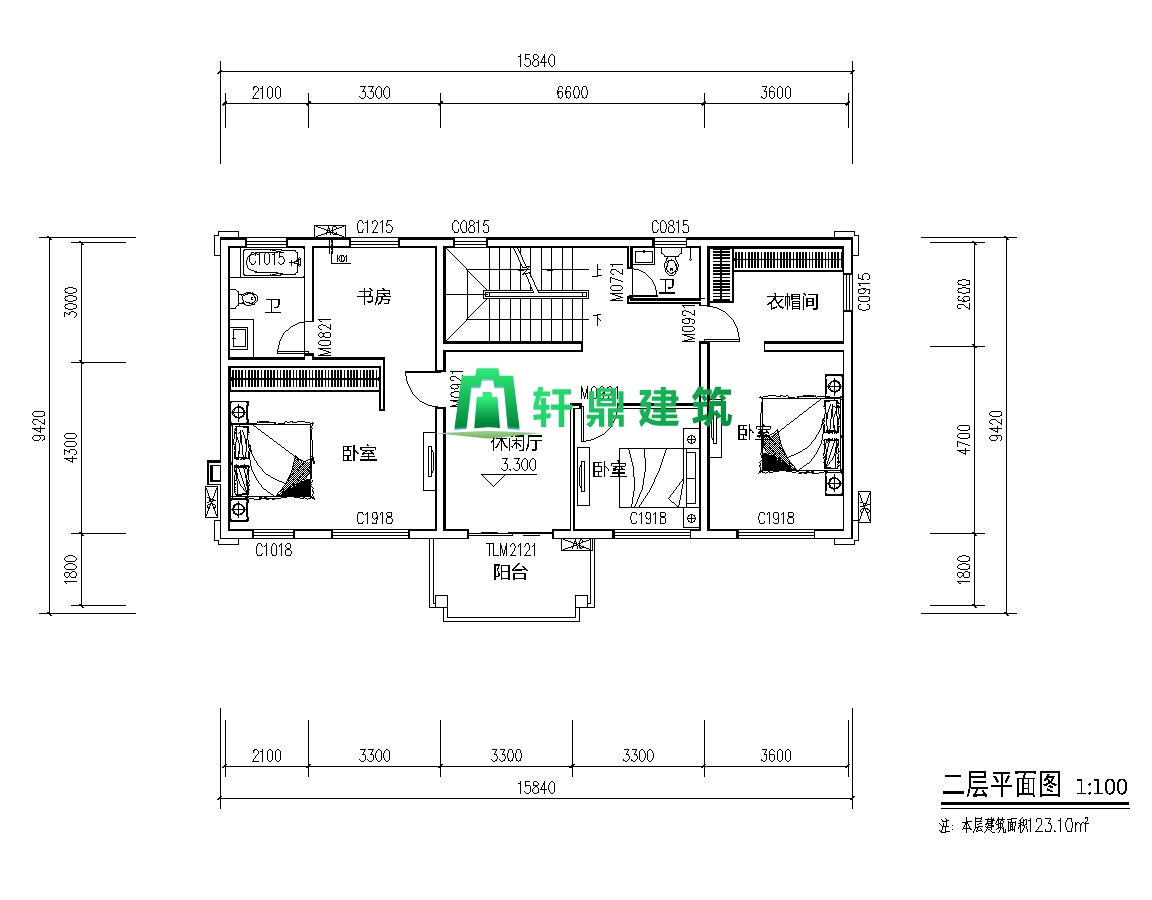
二层平面图;

三层平面图:

确认完平面图,在效果图,我们采用了2020新中式自建房比较流行的色彩,整体设计下来 ,新中式风简直满满啊~有没有爱上这种风格呢
正面效果图:

鸟瞰效果图:

侧面效果图;

背面效果图:

施工图,我们设计的是框架结构,整体高度11.8m,一层层高3.6米,二层层高3.0米,三层层高3.0米。整个的方案,陈总都很满意,~轩鼎建筑,专业打造您的私人美宅!
