这款精品的="://www.lemeizhai.com/Picture.asp?PicClassID=91" target="_self" title="三层复式设计">三层复式自建房设计11.54*12.34m。是网红款三层设计小楼!魏总在网页联系到我们的工作人员。想在四川老家建造一款复式的="://www.lemeizhai.com/Picture.asp?PicClassID=91" target="_self" title="三层复式设计">三层小楼。平常过节回去住一下,不需要太复杂的外观设计,简洁实用就行。
方案设计师为魏总设计的平面图如下:
一层:门厅、客厅、厨房、餐厅、卧室、卫生间、卧室(带卫生间)。
二层:棋牌室、卧室2、卫生间、卧室(带卫生间、阳台)。
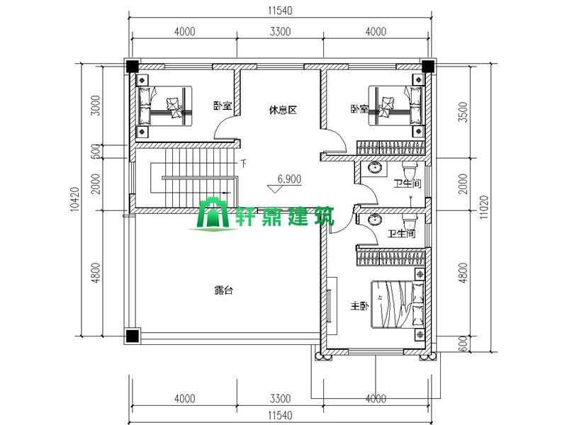
三层:休息厅、卧室2、卫生间、卧室(带卫生间)、露台。
一层平面:

二层平面图:

三层平面图:

这样一款多个卧室,带有休息厅,棋牌室 客厅挑空设计的户型,是不是很心动呢,一起来看看魏总的这款外观效果图吧!
此款效果图搭配的是浅褐色文化石+浅黄色涂料以及米黄色的面砖+白色高级涂料,屋顶采用橘红色的水泥瓦。
正面效果图:

侧面效果图:

背面效果图;

时隔多月,魏总有联系过我们,他的房子已基本建成 ,想请我们规划一下他的小院

魏总小院手绘草图:

此图实景展示:

来看一下小院的设计吧:


这样一款造价不贵,三层复式的小洋楼配有院子。离开城市的喧嚣,呼吸大自然的空气,惬意十足。谁又不向往呢~