河北廊坊吴总,想设计一款200平左右的小户型二层,在定制设计之前,浏览过很多作品。想把自己的一些想法融入到他自己的="://www.lemeizhai.com/index.asp" target="_self" title="两层自建房" style="font-family: 微软雅黑, "Microsoft YaHei"; font-size: 18px;">自建房中。

方案设计师根据吴总的要求绘制了两层平面图如下:
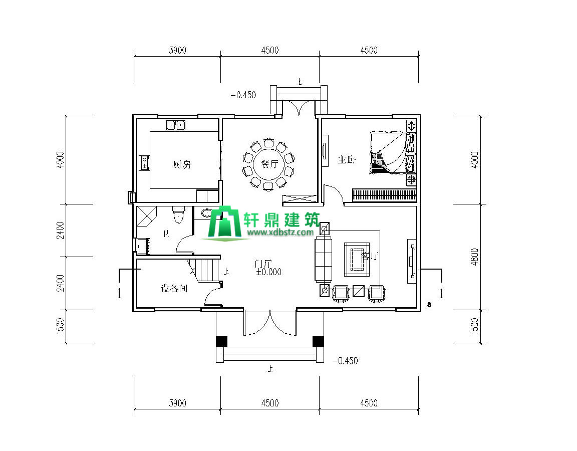
一层平面图:

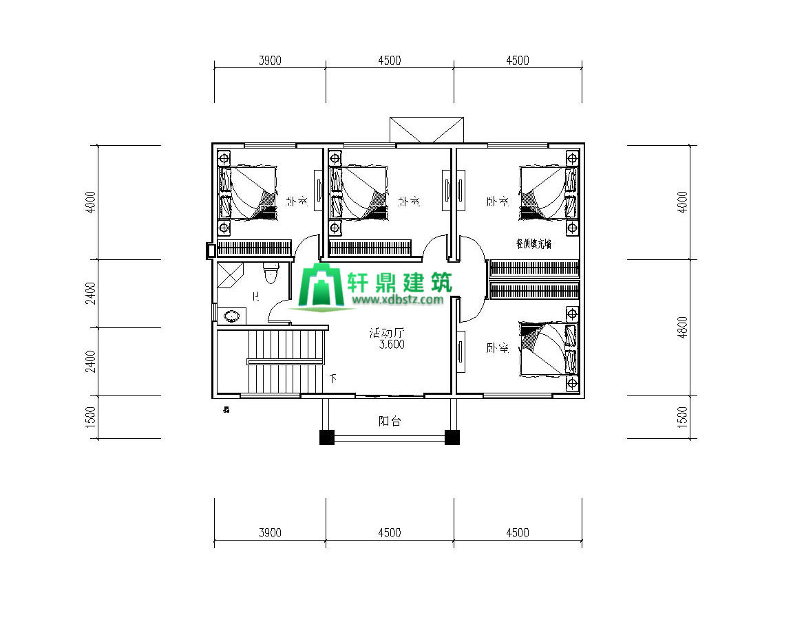
二层平面图:

一层 按照吴总要求,设计一个卧室,餐厅(留有后门),厨房(设有烟囱),客厅,杂物间,卫生间;二楼配有四个卧室,一个卫生间,一个小的活动厅以及阳台。一层的建筑面积117㎡,二层的建筑面积121.43㎡。
效果图的设计,按照吴总喜欢的颜色搭配了好几次,最终呈现出来的是灰色面砖+淡黄色的面砖以及门楼镶嵌几个浮雕,屋顶采用灰蓝色砂浆卧瓦。整体偏欧式风。虽然面积不大,但整体给人一种温馨十足。
鸟瞰效果图:

侧面效果图:

背面效果图:

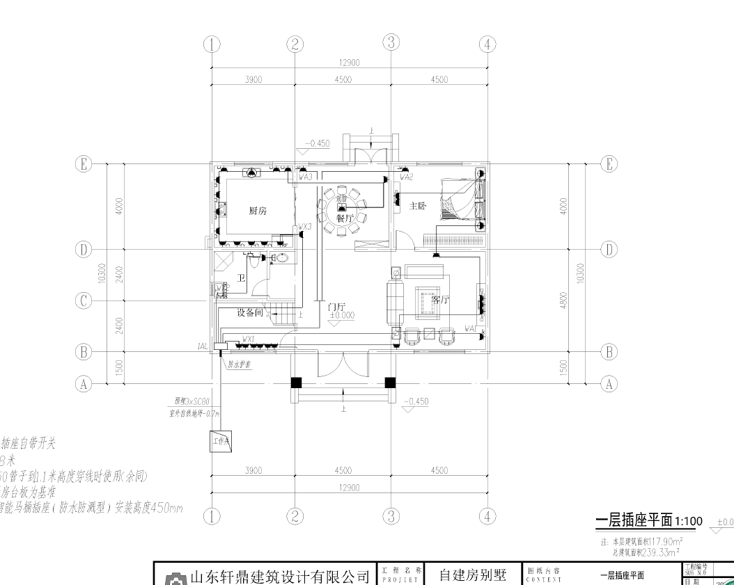
整体的施工图包含了建筑施工图,结构配筋图,排水施工图,电气施工图。全套设计。由于吴总工期较赶,设计师把设计工期也是压缩了大半,好在没有耽误吴总的开工。收到图的吴总也是非常的满意,吴总说,下次有老乡盖房,要给我们多宣传\(^o^)/~


