此款="://www.lemeizhai.com/PictureShow.asp?PicID=776&PicClassID=88" target="_self" title="小户型">小户型图纸,总体建筑面积200平,是为湖北王总设计案例。此图已建好实景图,大家可以翻阅浏览哦~
此款图纸是一款非常实用,占地面积也非常小的一款方案,王总宅基地面积不算大,整体设计空间非常的实用合理。是小户型中的复式设计方案。卧室为四个,多人口的家庭,也可以把书房改为卧室。功能齐全,是非常网红的一款作品。
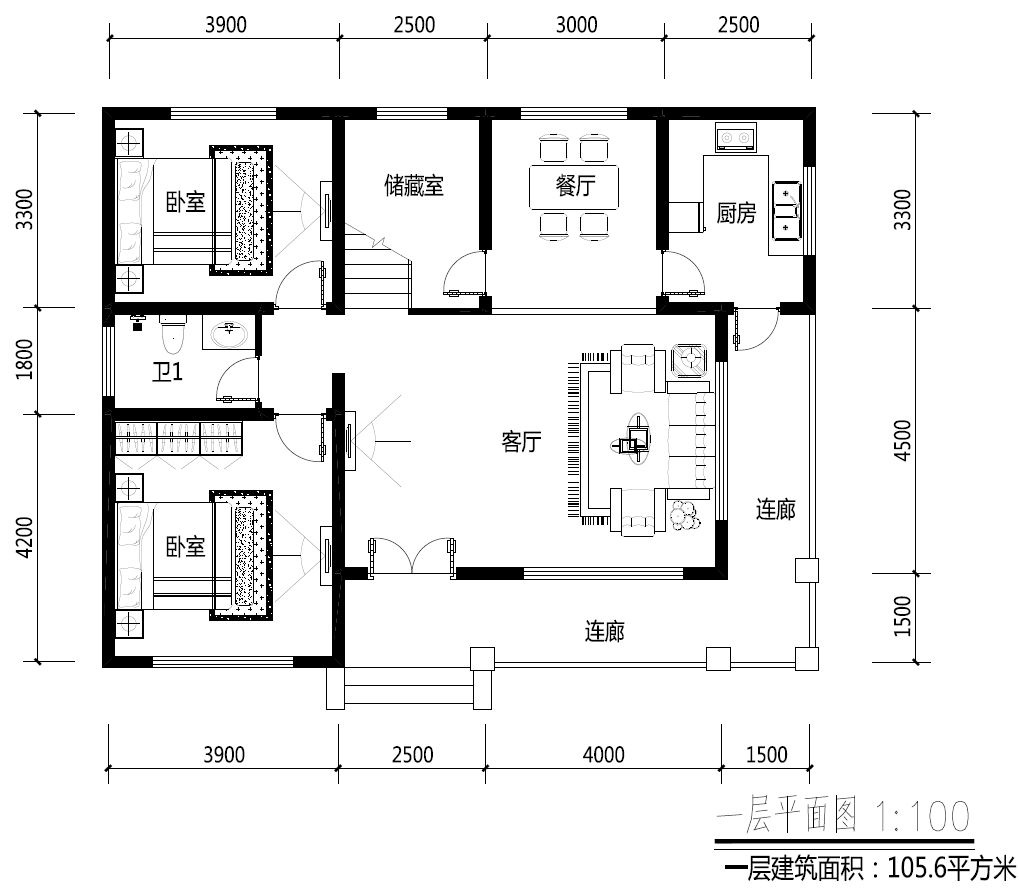
一层平面图:

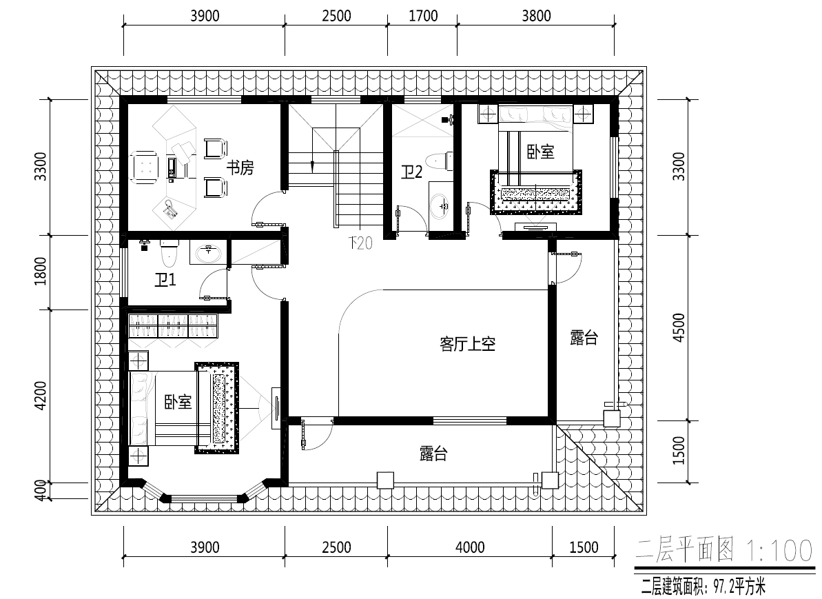
二层平面图:

整体的效果色彩,搭配的比较沉稳,不张扬。这几款的色彩搭配,在农村是非常流行的色彩。
正面效果图:

侧面效果图:

背面效果图:

实景案例分享:





镜像案例分享:
