现在建中式风格的人群越来越多。传统的美一直存在。下面这款是广东莫总的="://www.lemeizhai.com/PictureShow.asp?PicID=1298&PicClassID=91" target="_self" title="三层自建房">三层中式风案例,大气十足的外观,看了相信你会爱上此款方案的。
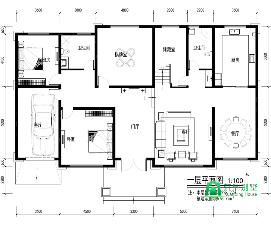
莫总找到我们公司,之前有希望的图片,但是希望能把门楼做的大气一些,并在中间位置,这样显得中规中矩。莫总的宅基地的面积还是挺大的,占地220平左右,设计空间很多,可以添加一些娱乐设施的房间,棋牌室、健身房,茶室等。都是可以很好地利用。
一层平面图;

二层平面图:

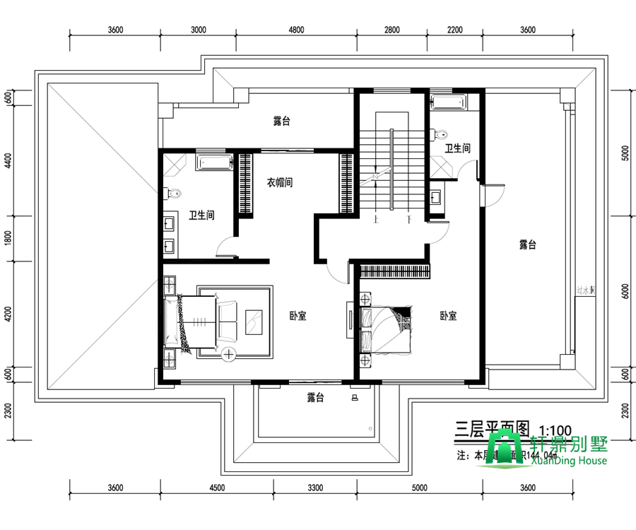
三层平面图:

整体的设计风格很大气,层次感十分的丰富。中式元素的构件在此款设计上也是随处可见,屋顶搭配上蓝色的琉璃瓦,新中式风满满。
正面效果图:

俯视效果图:

侧面效果图:

背面效果图:

莫总的施工图包含了建筑施工图。结构配筋图,排水施工图,电气施工图。整个施工图的设计为五天。此款别墅高度14.4米,一层高3.9,二层高3.6,三层高3.6.

莫总的三层别墅图正在施工中,一起期待莫总的实景分享吧~