七月初,徐总通过网页浏览看好一款带车库的="://www.lemeizhai.com/PictureShow.asp?PicID=1320&PicClassID=91" target="_self" title="三层自建房">三层自建房设计,由于和自己的宅基地有所差距,所以需要进行调整设计。


希望在这款方案的基础上做出调整。方案设计师和徐总沟通后,做出以下三层建房方案设计:
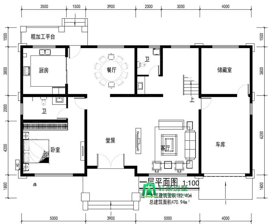
一层平面图:

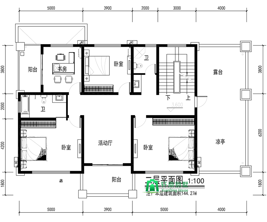
二层平面图:

三层平面图:

徐总的此款方案,卧室较多,每层设计两个卫生间,带有阳台,露台,以及车库。可以满足一家人的需求。
在外观效果图的设计,多窗设计,搭配米黄色的真石漆以及涂料,屋顶采用红色琉璃瓦,带有两个老虎窗。整体高度10.5米。
正面效果图:

侧面效果图:

俯视效果图:

背面效果图:

施工图采用框架设计,包含建筑施工图,结构配筋图,排水施工图,电气施工图。图纸细节点大样都是非常的详细。徐总图纸刚刚完成不久,正在施工,主体完工后,和大家一起分享实景案例哦。