湖南陈总七月初定制设计案例分享。

陈总之前看过几款作品,希望自己的住宅可以相结合, 带有阳光房,车库以及设计一间衣帽间卫生间一起的主卧。
一层平面图:

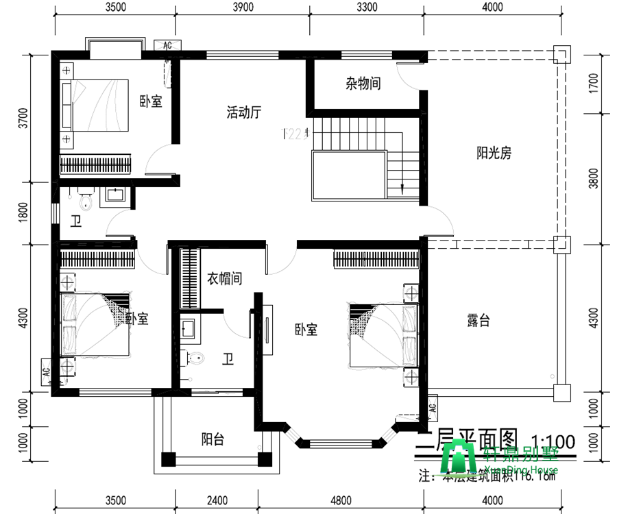
二层平面图:

大家一起看看这款="://www.lemeizhai.com/Picture.asp?PicClassID=88" target="_self" title="两层自建房">两层自建房设计案例吧,方案设计师为陈总设计总共四个卧室,每个卧室的采光都是非常不错的,二楼带有阳光房,以及露台。满足陈总一家人的住宅需求。
外观效果图,整体属于亮色调,正面以及左右面屋顶各带有老虎窗,通风效果极佳。屋顶搭配红色琉璃瓦,墙面带有几处浮雕。
正面效果图:

鸟瞰效果图:

侧面效果图:

背面效果图:

施工图图纸包含了建筑施工图,结构配筋图,排水施工图,电气施工图。整体房屋高度9.2米。一层层高3.3米,二层3.1米。砖混结构,占地尺寸14.7*11.8,占地面积156.32㎡。