湖北方总兄弟两人双拼案例。
七月初,湖北方总通过网站浏览,看好一款="://www.lemeizhai.com/Picture.asp?PicClassID=97" target="_self" title="双拼户型">双拼户型,但由于自己的宅地基与此户型有所差异。两兄弟便定制设计一款满意户型图。
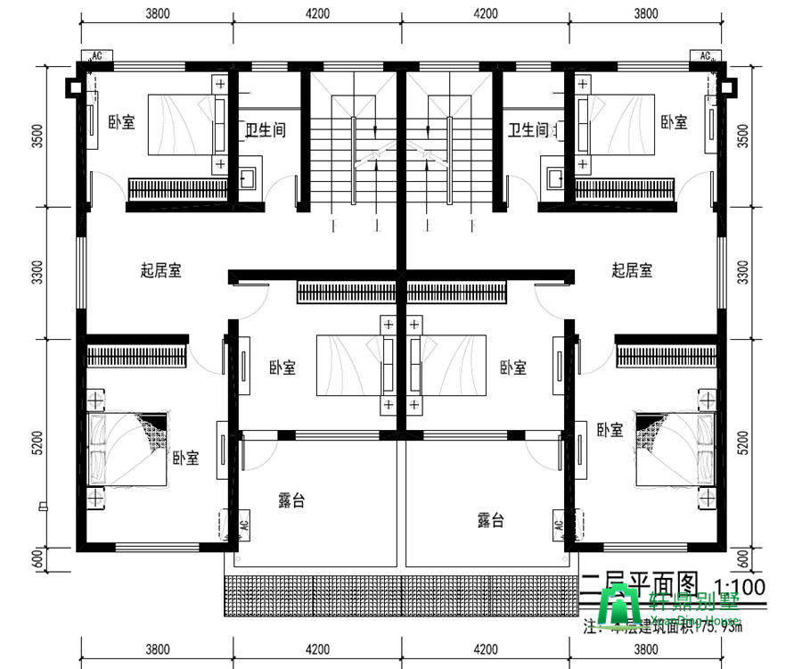
方总的宅基地尺寸为16*12.6,占地面积180平左右。希望每家至少有三个以上的卧室,满足一家人得需求。二楼每户有一个小的休息平台,用于晾晒衣物等。
一层平面图:

二层平面图:

一层方案设计,有小的差别,左边为卧室,右边则是一个活动室。二楼两兄弟的户型相同。
在外观效果图设计,一层,带有两个门楼。二楼露台则用墙隔断,保证了两家人的私生活。整体采用的是米黄色搭配红色砂浆卧瓦,温馨十足。
正面效果图:

鸟瞰效果图:

侧面效果图:

背面效果图:

房屋整体高度9.3米,一层3.6,二层3.3。采用砖混结构。总建筑面积364.92㎡,占地面积188㎡。包含建筑施工图,结构配筋图,排水施工图,电气施工图。全套图纸,简单操作,数据齐全。方总已在施工中,期待他的="://www.lemeizhai.com/Picture.asp?PicClassID=97" target="_self" title="双拼户型">两层双拼户型哦。