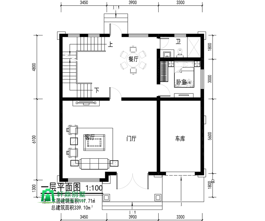
年初,崔总和爱人联系到我们,希望做一套带车库的房子,在网站也浏览了好几天,看好我们的一款三层="://www.lemeizhai.com/Picture.asp?PicClassID=91" target="_self" title="三层自建房">农村自建房款式,希望可以在此款的造型上基础加大,但担心施工方改动水平有限,所以请我们来重新设计。了解到崔总的需求后,方案设计师和崔总取得联系。此款方案总面积339.1平方米,一层117.71㎡。带有一个超大客厅。二三楼则是休息区域,分别是三个卧室。
一层平面图:

二层平面图:

三层平面图:

外观主体设计,和崔总沟通过几个方案,门楼处改动过几次,突显整个房屋的大气,层次感十足。
正面效果图:

侧面效果图;

鸟瞰效果图:

背面效果图:

这样一款="://www.lemeizhai.com/Picture.asp?PicClassID=91" target="_self" title="三层自建房">三层自建房,建在农村,有没有很气派呢?前后窗户较多,通风效果是极佳的,采光也十足,关键颜值也是非常不错的!
这款图纸包含建筑施工图,结构配筋施工图,排水施工图,电气施工图,外观效果图的设计。全套的施工图,非常的详细,农村的施工方也照样可以建出这样的颜值在线的自建房。