江苏昆山倪总="://www.lemeizhai.com/" target="_self" title="三层自建房">三层自建房设计案例分享含(平面图,外观效果图,室内装修图,实景案例)。一起来看看这款中欧结合的="://www.lemeizhai.com/PictureShow.asp?PicID=1255&PicClassID=91" target="_self" title="三层自建房">三层自建房设计案例吧。是不是你理想中的户型呢?
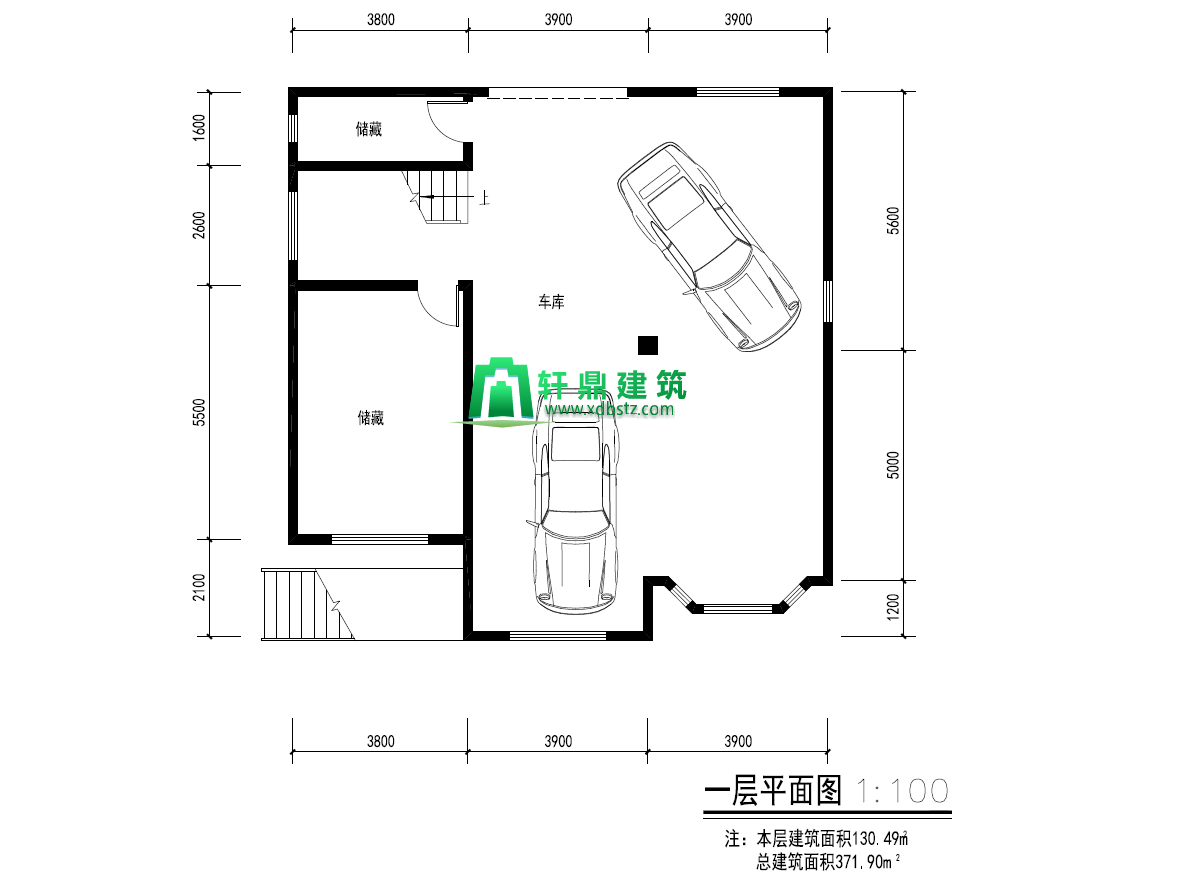
一层平面图:

二层平面图:

三层平面图:

此款方案,我们为倪总设计的总建筑面积是371.90㎡,占地面积137㎡,五个卧室,地下室两个储藏室,也可放多辆车,。
整体的外观效果图,层次感十足,带有室外楼梯,效果颜色搭配丰富,是一款非常好看的中西风格效果。
正面效果图

侧面效果图

鸟瞰效果图

背面效果图

此款房屋主体高度为14.2米,楼层层高:一层层高2.5米,二层层高3.6米,三层层高3.3米。
一起欣赏一下室内设计效果图:
客厅效果图:

走廊设计:

健身房效果图

活动室效果图

此款房屋主体,倪总已经施工的差不多了,大家一起先欣赏一下施工实景案例吧。



