大家一起欣赏一下来自江苏王总,这款="://www.lemeizhai.com/PictureShow.asp?PicID=1262&PicClassID=91" target="_self" title="自建房设计图">三层别墅设计带大露台以及院子的设计案例吧。总有一款适合您。

王总住宅尺寸为12.27*12.79,占地143㎡。想设计一款三层自建房,露台大一点,房间多一点。此款设计 ,方案师为王总一层设计为一个老人房,以及大家可以娱乐的棋牌室,二三楼则是卧室,满足一家人的住房需求。
一层平面图:

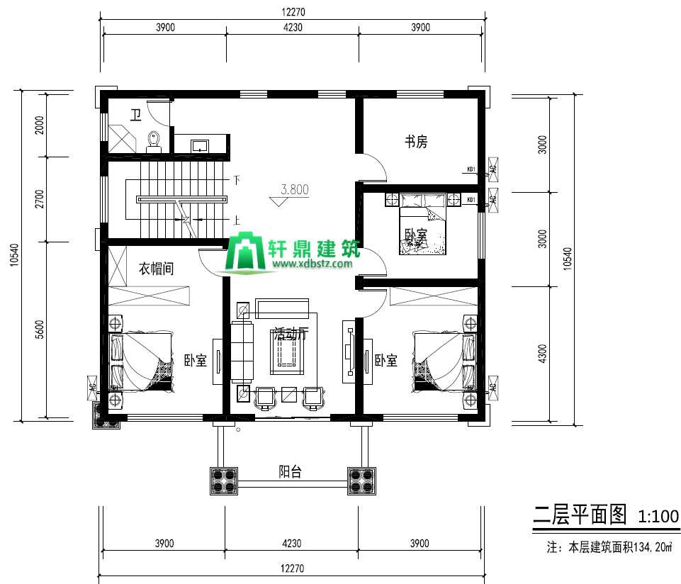
二层平面图:

三层平面图:

外观设计效果图,王总选择欧式风格。整体以乳白色为主, 再搭配欧式构件。效果图设计师和王总沟通多次,最终定稿。小院,王总需求简单,可以放开两辆车,院子里多一些花草的种植,有孩子休息的平台即可。
正面效果图:

侧面效果图:

鸟瞰效果图:

背面效果图:

小院效果图:




此款图纸的房屋主体,王总已基本完工,一起看看这款欧式="://www.lemeizhai.com/Picture.asp?PicClassID=88" target="_self" title="三层自建房">三层自建房实景案例图吧:
