重庆丰都县马总="://www.lemeizhai.com/Picture.asp?PicClassID=91" target="_self" title="三层设计图">三层设计图案例分享:
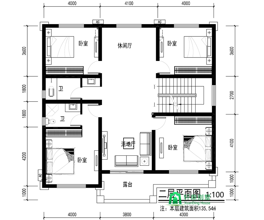
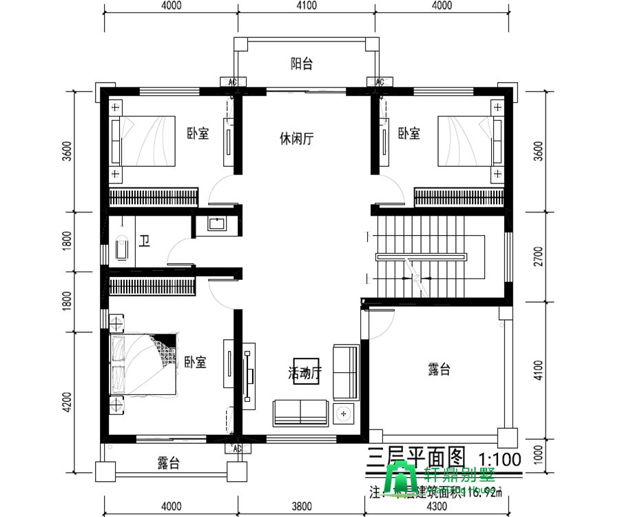
马总三层自建房,整体建筑面积388㎡,一层135.54㎡。二层135.54㎡。三层116.92㎡。面宽12.1m,进深12.4m.一楼为马总设计为茶室,餐厅,棋牌室,卧室带卫生间,客厅以及储藏室;二楼四个卧室以及活动厅,三楼三个卧室以及带有露台。
一层平面图:

二层平面图:

三层平面图:

此款房屋风格为新中式,此款房屋搭配的是米黄色的面砖,仿大理石漆,以及高级的灰色涂料,屋顶采用的是黑色砂浆卧瓦,在搭配带有中式元素的构件。
正面效果图:

鸟瞰效果图:

侧面效果图:

背面效果图:

在和设计师经过几个工作日的沟通,修改,最终定稿此款风格设计。房屋高度12.895米,一层层高3.6米,二层层高3.3米,三层层高3.3米。图纸包含建筑施工图,结构配筋图,排水施工图,电气施工图。

主体基本完工:
