今年九月,湖南长沙黄总通过微信,联系到工作人员。急需一套二层中式风格的自建房图纸。黄总自己画了草稿。希望能和他的想法结合起来,达到一个完善的布局方案。

黄总提供的方案:


根据黄总的初步想法,方案设计和业主讨论过后,设计出最终稿:
一层:

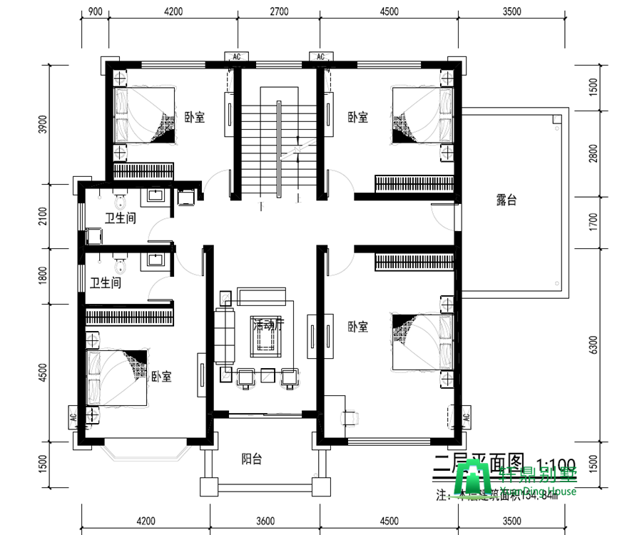
二层:

外观效果图的造型,整体采用棕色调偏多,底部棕色的人造艺术石,一二楼采用米黄色面砖,屋顶搭配深棕色琉璃瓦。整体的风格搭配偏向中式。="://www.lemeizhai.com/PictureShow.asp?PicID=1302&PicClassID=88" target="_self" title="自建房设计图">中式自建房风格也渐渐成了这几年大家盖房的首选风格之一。
正面效果图:

侧面效果图:

鸟瞰效果图:

背面效果图:

此款中式风格的别墅,整体高度10.377米,一层3.8米,二层3.3米。占地尺寸170.33㎡,一层建筑面积170.33㎡,二层建筑面积154.84㎡。包含全套的施工图,建筑施工图 ,结构配筋图,电气施工图,排水施工图,外观效果图。
