杨总提供的自家房屋草图:

杨总此款="://www.lemeizhai.com/Picture.asp?PicClassID=88" target="_self" title="别墅设计">两层别墅建在重庆潼南老家,希望设计一款两层的中式仿古设计。村里太多的="://www.lemeizhai.com/search.asp?SearchType=Software&SearchKey=%C5%B7%CA%BD&imageField.x=0&imageField.y=0" target="_self" title="欧式自建房">欧式自建房,想设计一款不一样的款式风格建在老家。造价在四五十万,造型简单一点,施工方易于施工。杨总简单画了一下草图。
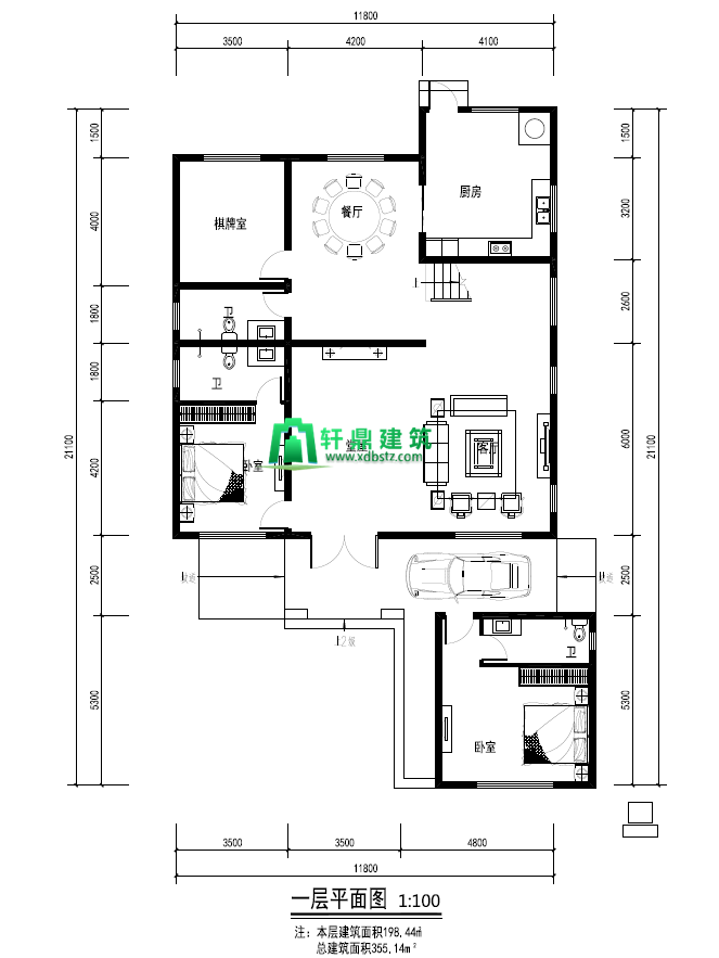
一层平面图:客厅,卧室带独卫,厨房,餐厅,棋牌室,卫生间,卧室带独卫。

二层平面图:小型活动厅,卧室带独卫*2,卧室带衣帽间独卫,阳台。

此款平面方案的设计,11.8*21,每个卧室都带有独立的卫生间,方便了家人的隐私需求。一楼走廊带有小坡,可以停放一辆车,也大大节约了空间;厨房留有后门,可以方便垃圾的处理,棋牌室可以方便家人的娱乐。二楼则是休息区域,小型活动厅可以供孩子玩耍。阳台的设计,种种花草。也可以放一个木亭,便于家人闲聊赏风景。
正面效果图

侧面效果图

鸟瞰效果图

背面效果图

整体效果图方面,杨总希望简洁一点,中式构件不要太复杂。此款风格搭配以灰色文化石+白色涂料为主,屋顶蓝色卧瓦,二楼带有一个成品的木亭,更突显中式风格的味道。此款房屋整体高度10.93米,一层层高3.9米,二层层高3.9米,。
杨总已经开始动工了,一起期待杨总的这款二层中式自建房。
