江西赣州徐总新中式三层自建房设计图案例
徐总宅基地140平,做一套三层的="://www.lemeizhai.com/PictureShow.asp?PicID=1330&PicClassID=91" target="_self" title="新中式自建房">新中式自建房。造价控制在50万内,带有堂屋,复式设计等。和设计师几天的沟通,为徐总设计以下平面方案设计。
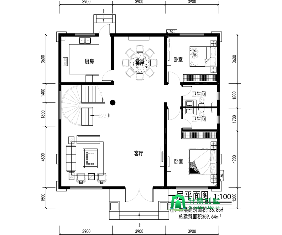
一层平面图:

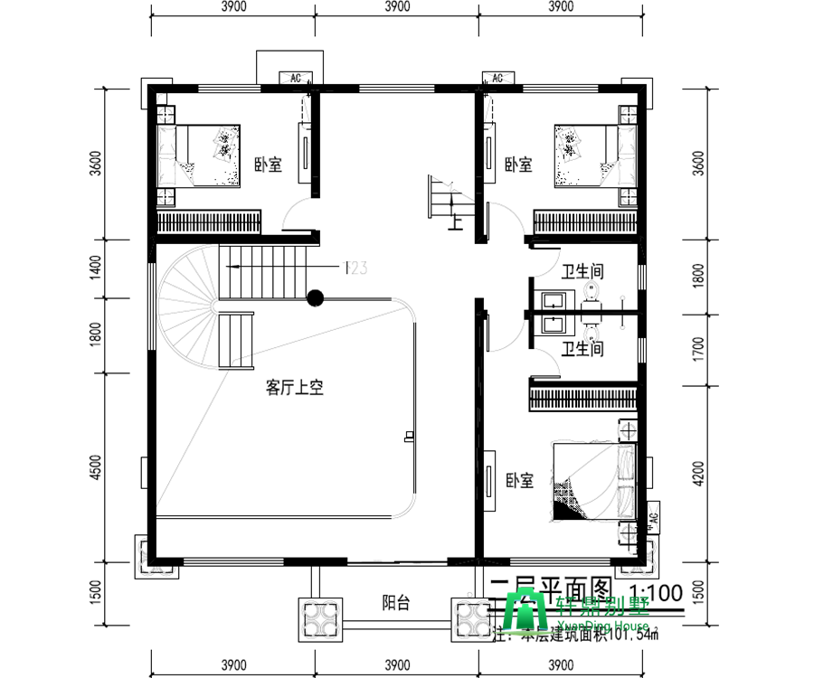
二层平面图

三层平面图

此款新中式方案的设计,面宽11.7m,进深12.8m。一楼带有客厅,卧室*2,卫生间,餐厅,厨房,堂屋。一楼的卧室设计方便老人的起居生活,厨房留有后门,方便了垃圾收拾。
二楼卧室*2,卧室带卫生间,小客厅。
三楼卧室*2带有卫生间和衣帽间,客厅以及露台。三楼两个卧室,功能齐全;阳台以及两边的卧室都带有露台,养花,欣赏风景都是不错的。
正面效果图

鸟瞰效果图

侧面效果图

背面效果图

外观效果图的设计,徐总比较喜欢褐色,虽然喜欢新中式,但又不喜欢太复杂的造型,担心施工方达不到效果图的施工效果,以及造价成本太高。最终讨论后,外观设计师和徐总敲定了外观的造型,色彩的搭配。
超大的落地窗设计,不以增加了室内的采光,在整体的造型上也十分的震撼。墙壁上的砂岩浮雕以及新中式元素的构件极为突出中式设计。一楼褐色的真石漆为主,二楼米黄色真石漆,屋顶传统的红色琉璃瓦。
房屋高度到屋脊最高13.190米,一层3.5米,二层3.3米,三层3.3米。包含建筑施工图,结构配筋图,排水施工图,电气施工图,外观效果图。造价50万以内,新中式风格。
