广东五华县李总三层欧式自建房。
李总需要一款175平左右="://www.lemeizhai.com/PictureShow.asp?PicID=1158&PicClassID=91" target="_self" title="三层自建房">三层自建房,关注了="://www.lemeizhai.com/index.asp" target="_self" title="轩鼎建筑">轩鼎建筑很久,也看过很多的作品,喜欢下面的这款设计,但又希望能结合自己的一些要求会更加完美。在工作人员和李总沟通的几天里,了解李总的需求,更好的把设计理念 体现出来。

李总需要方案设计师设计一款占地175平左右,布局设施健全,旋转楼梯,复式设计,房间多一些,卧室配有阳台。
一层平面图:客厅,老人房带独卫,卫生间,卧室带阳台,餐厅,厨房。

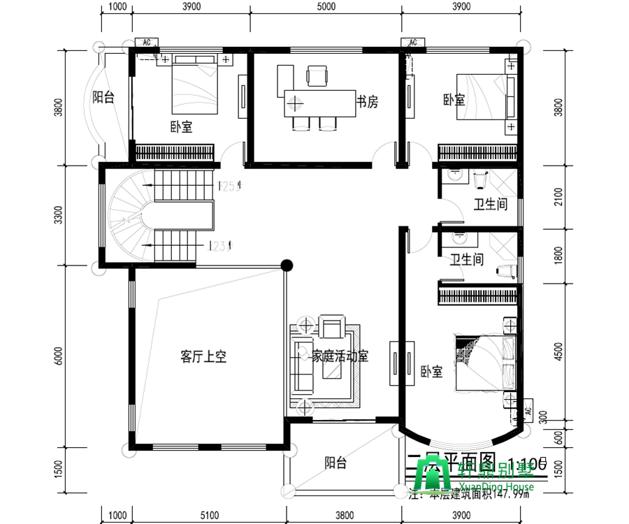
二层平面图:卧室带阳台,书房,卧室,卫生间,卧室带卫生间,活动厅,阳台

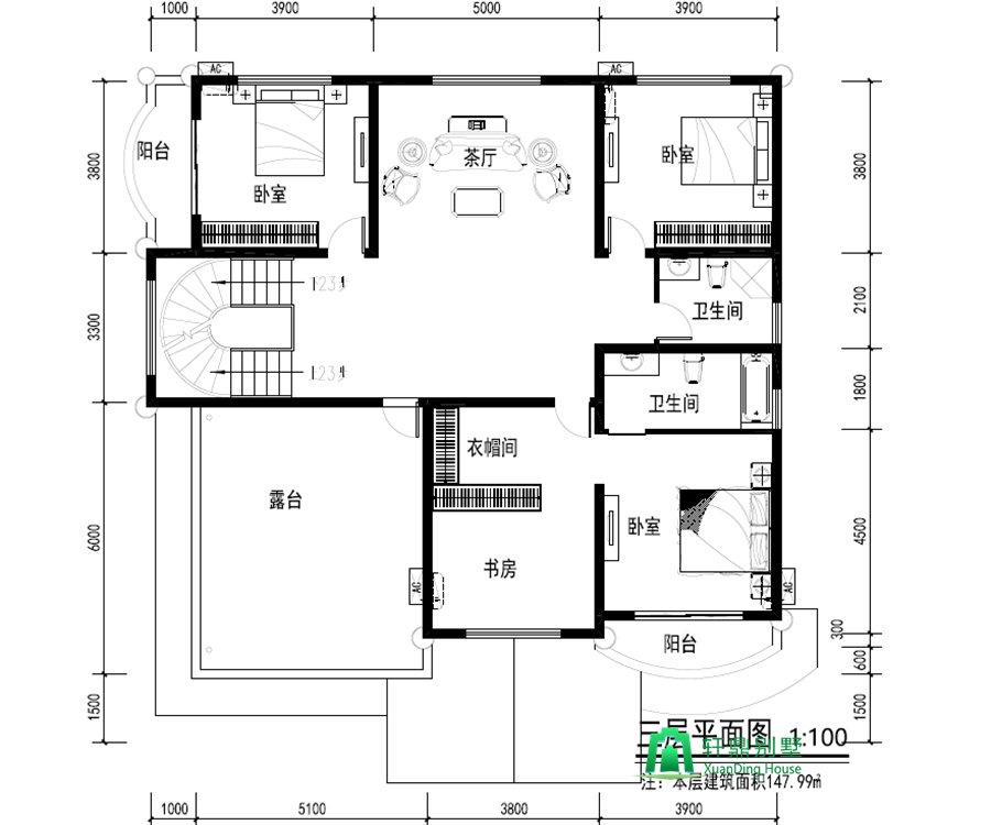
三层平面图:卧室带阳台,茶厅,卧室,卫生间,卧室带卫生间,衣帽间,书房,露台

此款设计方案,值得一提的是每个卧室都带有生活阳台,可以很好地有休息的空间。复式的设计,旋转的楼梯,不仅空间更加明亮,还是整个室内显得高大。老人生活在一楼,可以很好地方便起居生活,配有独立的卫生间。二楼书房,安静的生活空间。活动厅也带有小型的阳台。三楼茶厅部分面积较大,李总与朋友聊天等,都是可以利用起来。较大的露台,方便晾晒衣物。
侧面效果图

正面效果图

鸟瞰效果图

背面效果图

此款房屋设计是欧式风格。李总特别喜欢这样的欧式建筑,也搜集了不少的图片,和外观设计师进行交流其中的细节。超大的落地窗,阳光充足的一天,照进卧室简直可以懒洋洋睡上一天啊。门前两个大柱子,无疑是整个房屋的亮点。高大挺拔,侧面的生活阳台也都是罗马柱和柱子相连,从外面整体看,非常的好看。背面的窗户也很有特点,欧式窗套的设计,更加的新颖独特。整体采用乳白色的真石漆,搭配黄色的欧式浮雕,门口还有两个小花坛,养几株花草,又是另一番的样貌。
此款设计整体房屋高度13.17米,一层层高3.7米,二层3.4,三层3.4.欧式建筑别墅。
图纸包含建筑施工图,结构配筋图 ,排水施工图,电气施工图,外观效果图。在施工图的设计中,李总也提出了对电气施工图中线路的要求。整体图纸十天时间,全部完成,得到了李总家人的肯定。
施工图设计
