湖北宜昌张总两层自建房设计图案例。
张总需要一款两层的款式,想带有偏房的设计,休息平台和厨房餐厅等隔开,带有堂屋,卧室大一些,普通楼梯不需要旋转以及客厅挑空,面积控制在320平以内。造价35-40万左右。新颖款式。设计师了解张总的建房需求后,为张总设计此户型图:
一层平面图:客厅,门厅,卧室*2,卫生间,洗衣房,堂屋,杂物间,柴火房,餐厅,厨房。

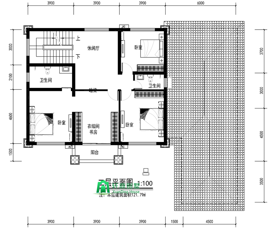
二层平面图:休闲厅,卧室*2,卫生间,卧室带有卫生间衣帽间,阳台。

一层建筑面积为194.46㎡,二层建筑面积为121.79㎡。总面积316.25㎡。
正面效果图

侧面效果图

鸟瞰效果图

背面效果图

此款设计风格欧式与中式结合,造型简约,既有欧式风格的特色,也有中式风格的美。还带有偏房的设计,非常方便业主的使用。
主要以乳黄色的真石漆为主,暖色调系,没有太繁琐的构件来衬托房屋,这样反而显得十分的好看,屋顶搭配蓝色的砂浆卧瓦。整体高度9.431米。一层层高3.3米,二层层高3.0米。多窗的设计,使屋内的每个地方都有 采光。二楼的推拉门阳台,晾晒衣物,或者养几盆花,再或者放两个小凳子,欣赏一下乡村风景,也是十分惬意的事。
图纸包含建筑施工图,结构配筋图,排水施工图,电气施工图,外观效果图。图纸细节十分的详细,施工人员也易看懂。在乡村建造这样一款风格的房屋,是十分亮眼的哦。期待一下张总的="://www.lemeizhai.com/Picture.asp?PicClassID=88" target="_self" title="两层自建房">两层自建房设计图吧。
