今天为大家分享一款两层="://www.lemeizhai.com/PictureShow.asp?PicID=1350&PicClassID=88" target="_self" title="欧式自建房" style="font-family: 微软雅黑, "Microsoft YaHei"; font-size: 18px;">欧式自建房设计,此款设计是为河北石家庄高总所设计,高总的宅基地面积不是很大,但面宽在18米,不知如何设计两层农村自建房,造型好看,布局实用。下面是我们方案设计师为高总设计的面宽18米,进深13.2米的方案,如果您正在建房,也面临着相同的不知道如何建造自己的宅基地问题,那就一起来看看吧。
一层平面图

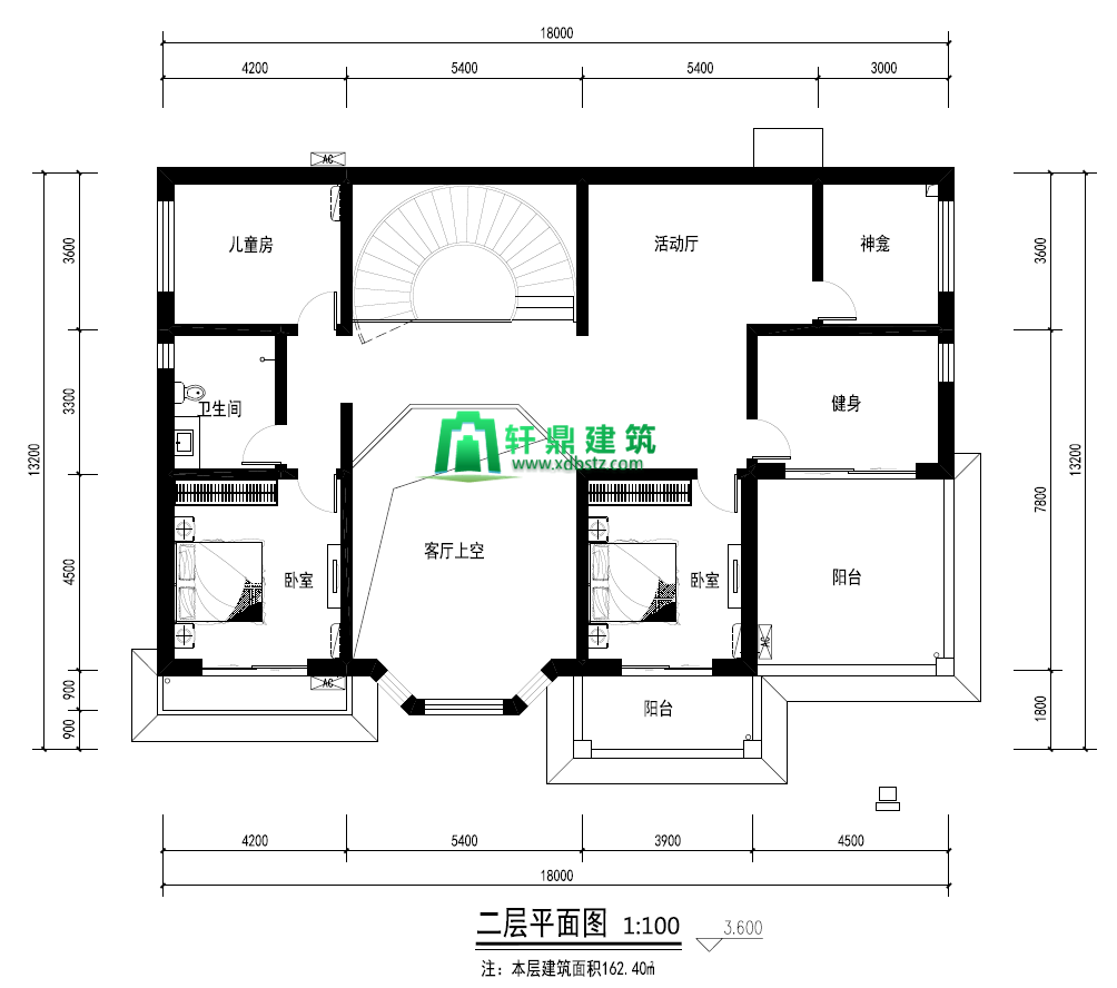
二层平面图

此款平面图一楼车库,门厅,客厅,卧室,卫生间,餐厅,厨房。二楼儿童房,活动厅,神龛,卧室,卫生间,卧室健身房,阳台。
此款的设计带有车库,非常方便业主的停车,不用再停在路边,车库平是也可以用作储藏室。餐厅和厨房相连,并留有侧门,方便主人的垃圾处理。一楼的卧室留给老人,方便老人的起居生活,卧室面积也较大,也是十足的光照。旋转楼梯上去后,儿童房以及两个卧室,亲戚朋友都可以住下,解决了多人口的住不下的烦恼。工作之余在家就可以健身,足不出户。阳台种种花草,天气好,晾晒衣物等。这样一款非常实用的户型,你有没有心动呢。
正面效果图

鸟瞰效果图

背面效果图

在风格设计方面,高总喜欢欧式风格,村里中式风格挺多,就想建一款造型不太一样的。这款外观设计美观,农村贯用的坡屋顶设计,门窗造型简单好看,底部褐色文化石,一楼褐色条形面砖,二楼乳黄色的真石漆在搭配屋顶的黑色琉璃瓦。此款建筑施工成本低,难度也不大,农村师傅看到图纸易施工,适合农村大多数的家庭建设,是一款非常经济实用型的别墅。
此款图纸,占地尺寸:18mX13.2m,占地面积:215.37㎡ ;建筑面积:377.77㎡ ;建筑结构:砖混结构;一层建筑面积(包含外墙):215.37㎡。包含建筑施工图 ,结构配筋图,排水施工图,电气施工图,外观效果图 ,五大部分图纸。
