广东 湛江市孙总三层平顶房屋设计
此款图纸设计方案是为广东湛江市孙总设计的一款三层平屋顶设计。2020年四月初,孙总通过网站平台联系到我们="://www.lemeizhai.com/index.asp" target="_self" title="轩鼎建筑">轩鼎建筑设计公司,想做一款三层平顶的自建房。
孙总浏览过网站几天 ,找寻了一些自己喜欢的样式,以及房屋的一些细节点。结合自己的兄弟已经建好的房屋,想单独定制一款。


方案设计师了解到孙总的平面要求后,为孙总设计了一款布局实用性强的方案图。
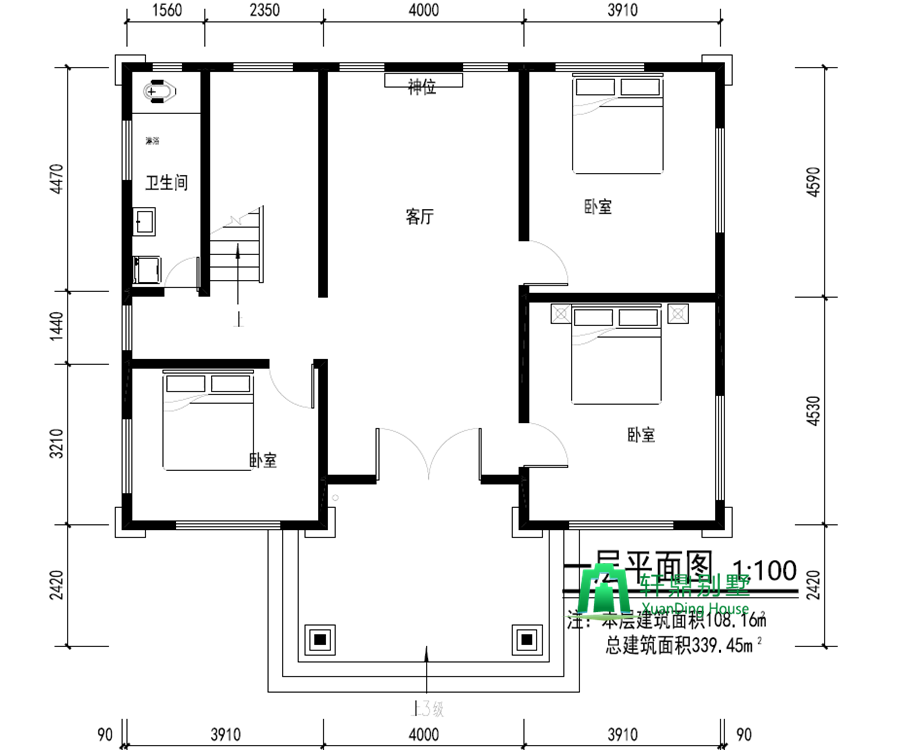
一层平面图

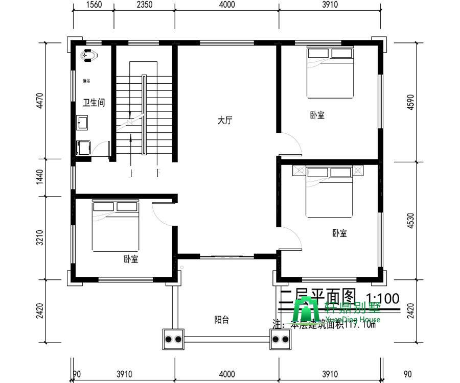
二层平面图

三层平面图

此款方案总面积339.45平方米,占地面积108.16平方米,一层建筑面积108.16㎡,二层建筑面积117.1㎡,三层建筑面积114.19㎡。刚好满足了孙总总建筑面积不超过340平的需求。
一层和二层分别三个卧室,满足一家人的需求,此款厨房和餐厅独立建设。三楼则是一个休闲场所,带有棋牌室,大厅,多功能厅以及露台。
正面效果图

鸟瞰效果图

侧面效果图


背面效果图

外观设计,孙总想把柱子做成圆柱,施工的时候喷大理石涂漆,一楼采用石材,二三楼搭配瓷砖。房屋整体高度,一层层高4.0米,二层层高3.8米,三层层高3.8米。
实景分享


孙总的施工图纸正在施工中,一起期待一下这款图纸建好的样式吧。