占地80平米的四层欧式别墅,小面宽根本不用愁,今天这款别墅你一定特别感兴趣,宅基小不要紧,这样建就能完全解决房子小的问题,来看看这款别墅怎么样吧。
效果图:

别墅信息:
参考造价:31-40万
占地面积:80平方米
建筑面积:307平方米
开间8米,进深10米
砖混结构,建筑高度15.382米
全景展示图:



别墅外墙以米黄色仿大理石真石漆和浅褐色贴面砖装饰,屋顶是浅红色西班牙瓦,罗马柱非常让别墅整体更加气派。
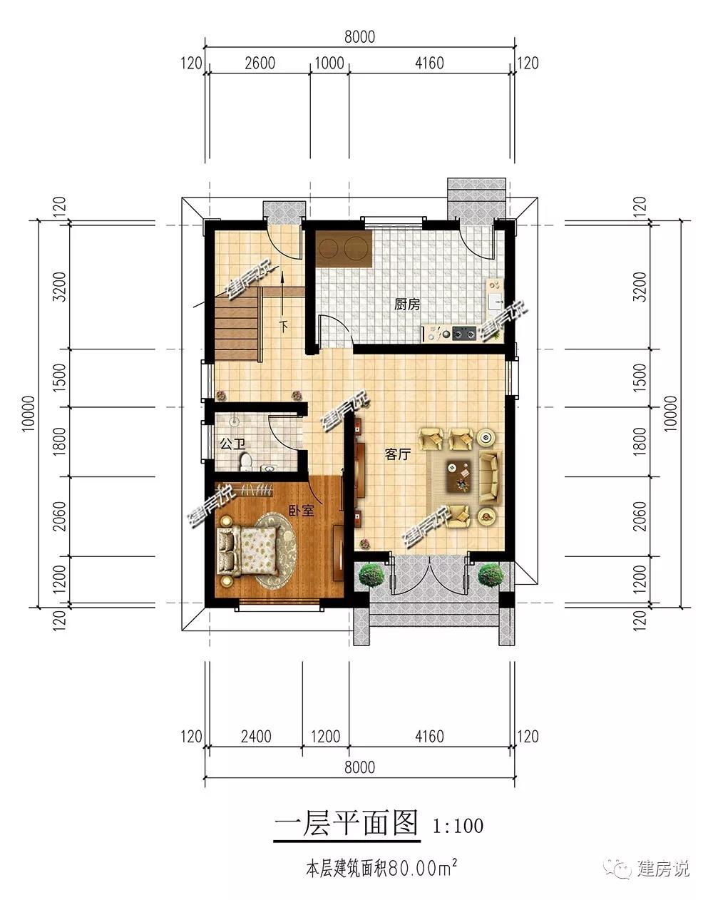
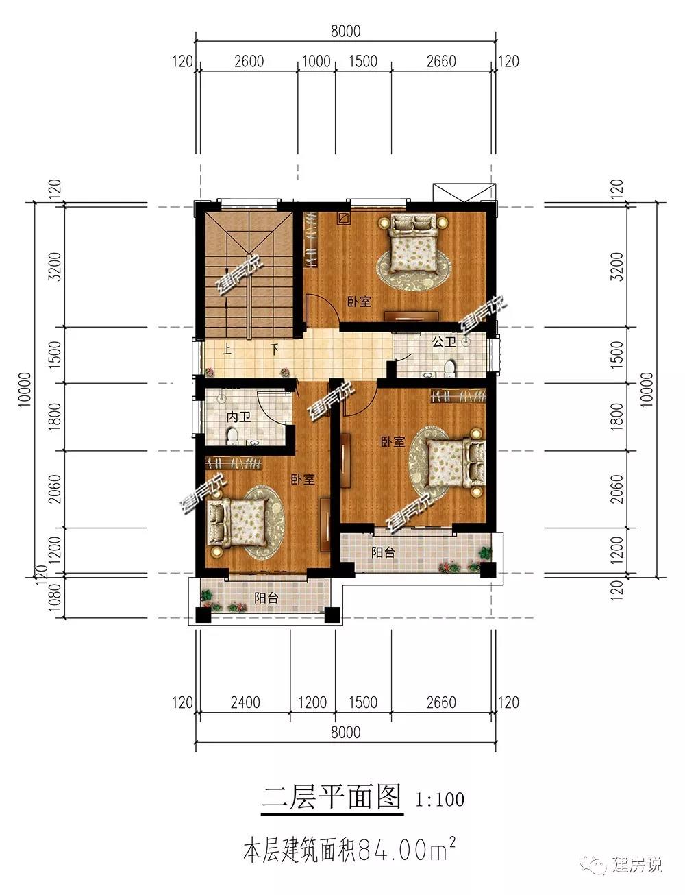
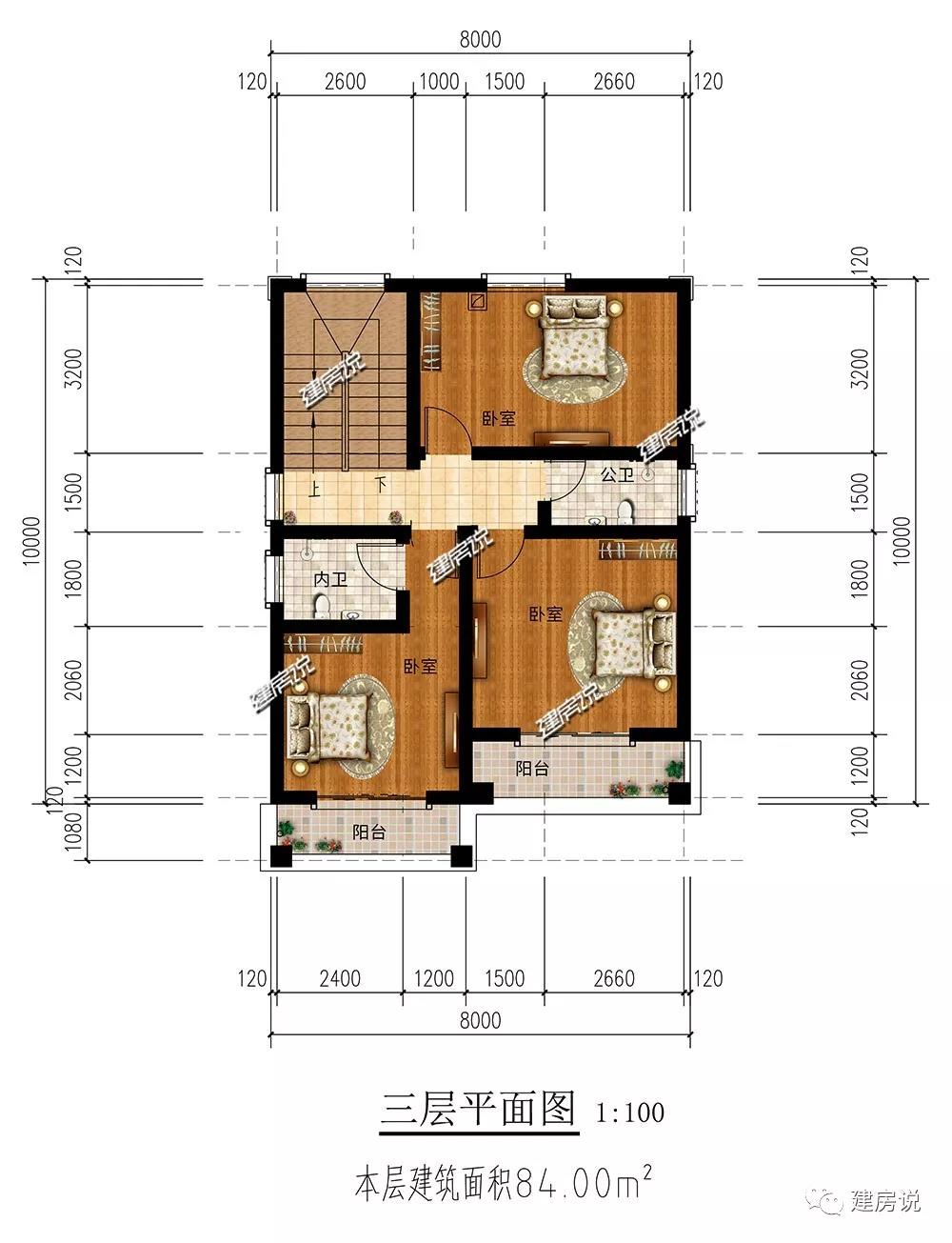
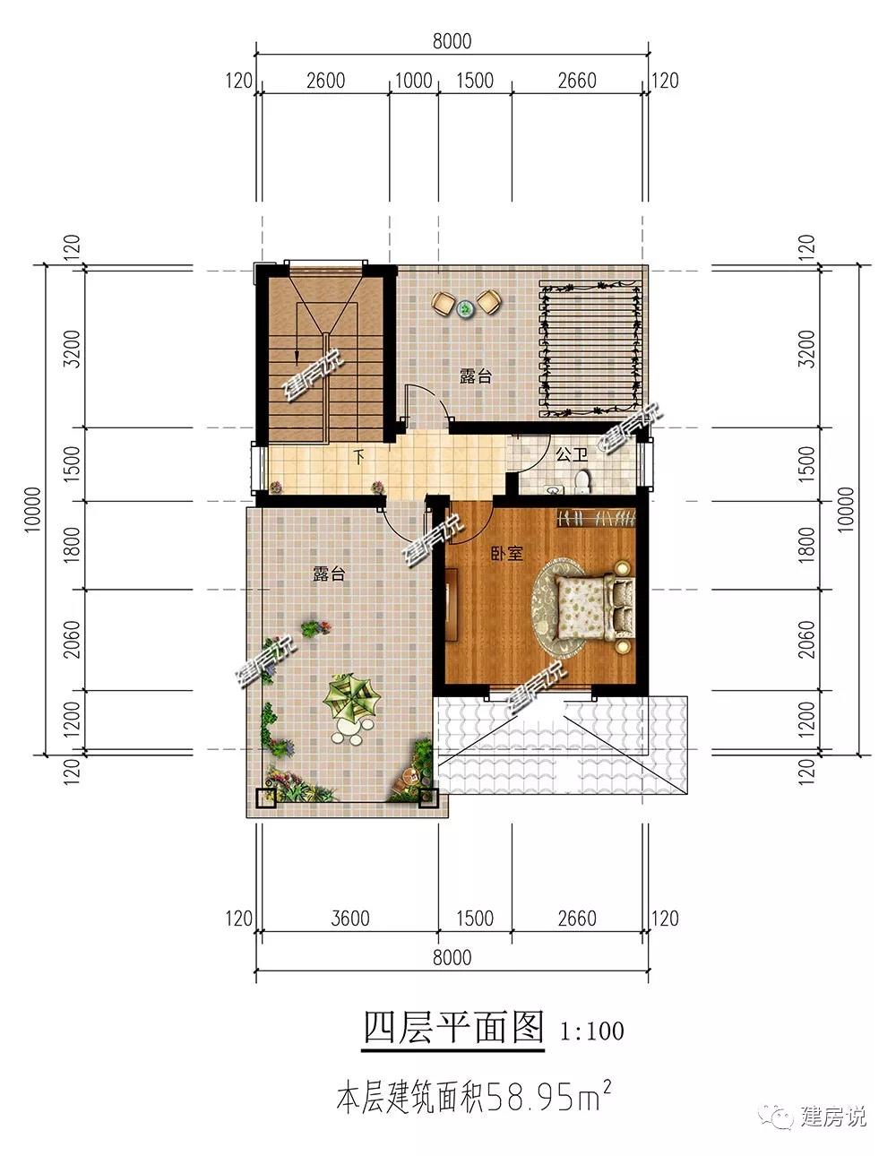
室内布局设计:

一层:客厅宽敞,方便招待亲友;厨房和餐厅开放式分布,营造温馨用餐环境;卧室旁做老人房。

二层:3个卧室,布局紧凑合理;配2阳台,观景、晾晒两不误。

三层:与二层布局相同,卧室充裕,满足一家人起居需求;阳台让室内通风采光更佳。

四层:2个露台,一大一小,打造空中花园,生活美滋滋。
转载请注明出自轩鼎别墅设计://www.lemeizhai.com/