今天小编给大家推荐一款特别好的小面宽别墅,谁说小面宽不好。建别墅面宽不是问题,只要有合格的图纸,不偷奸耍施工队,就不愁建不出好别墅。来看看这款别墅吧,不仅有车库外观还特别靓呢。别墅的外墙以白色和黄色真石漆搭为主,罗马柱设计很霸气、精致的山花点缀跟架空层台阶入户,更使得别墅霸气十足。
效果图:

别墅信息:
参考造价:37-45万
占地面积:101.285平方米
建筑面积:343.065平方米
开间11米,进深13.07米
框架结构,建筑高度15.15米
全景展示图:





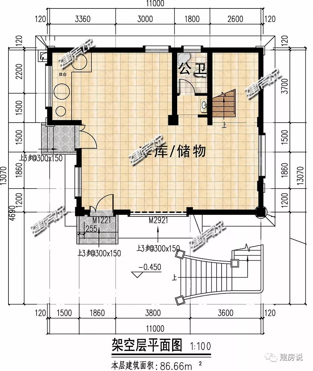
平面布局图:

架空层:车库及储物间为主,满足家人日常泊车用车及储存杂物;还设有土灶台,方便老人做柴火饭。

一层:入户设玄关隔断,避免进门见楼梯;客厅、餐厅、厨房开放式分布,空间开阔,营造温馨的家庭生活氛围。

二层:3个卧室,大小有别,满足日常居住;休闲区和小露台可作为观景台,观赏乡村美景。

三层:1个卧室,可做客房,方便亲友做客留宿;棋牌室,丰富娱乐生活;2个露台,满足晾晒,打造空中花园。
转载请注明出自轩鼎别墅设计://www.lemeizhai.com/