新中式别墅设计:合理配置的新中式别墅,家庭享受优质生活

基本信息:
深度: 18米
开间:十四米
建筑面积: 316米
土建成本: 48万
这座建筑是新中式别墅,整体由房屋和庭院组成,有车库、休闲区,是大家理想的房型,不仅美观,而且很实用。

立面采用白色真石漆,实现了简单的大气外观形象。 双坡式屋顶复盖灰瓦,排水效果非常好,白灰组合也显得非常舒适。 入门门上的溜槽形状突出了空间,产生了深刻的视觉效果,增加了入门仪式感。

西侧的大车库里,留有宽敞的库门,可以开车自由出入,非常方便。 车库的上部采用平面设计,创造有利空间,提供休闲平台。


庭院的墙壁是用青砖砌成的,与经典的庭院门檐相结合,中国式的要素之美就显现在其中。 南庭墙采用拔墙设计,院内与院外空气交流,营造清新舒适的室内环境。

院内布局非常合适,休闲区、景观台、人行道清晰可见。 家人在这里无忧无虑地享受着美好的生活。


屋顶休闲台。
南立面效应图。
一层平面分布图

正房分布着客厅、厨房、餐厅、主卧铺、次卧铺、储藏室、厕所。
房间外面分布着车库、庭院、休闲区。
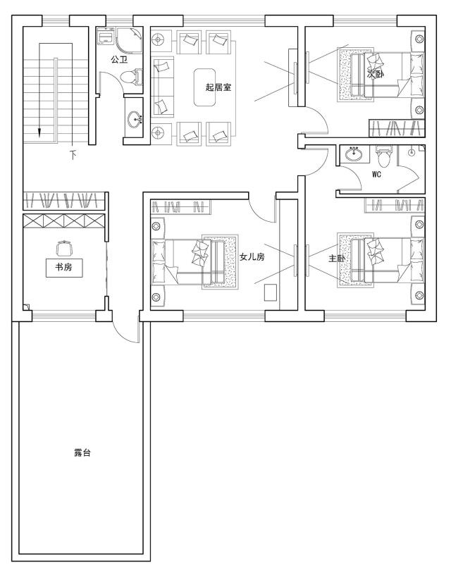
双层平面分布图

二楼主要设有卧室和书房。 主要卧铺采用夹克形式,女儿房间毗邻书房,这些设置修订便于家庭使用。 露台的设计让建筑有展望和晾晒的地方。
淡淡的新中国式别墅,整个平面修订有规律,布局非常合理,让家庭享受更美好的生活。
转载请注明出自轩鼎别墅设计="://lemeizhai.com" target="_self">://www.lemeizhai.com