什么是温暖的家?面对面坐在露台上,喝喝咖啡,聊聊心愿,看着远方丰收的喜悦,伴着儿孙嬉闹的乐章,一块地,一座房,装满美好生活的回忆……今天这款二层现代田园风格的="://www.lemeizhai.com/" target="_self">别墅设计推荐给大家
效果图:


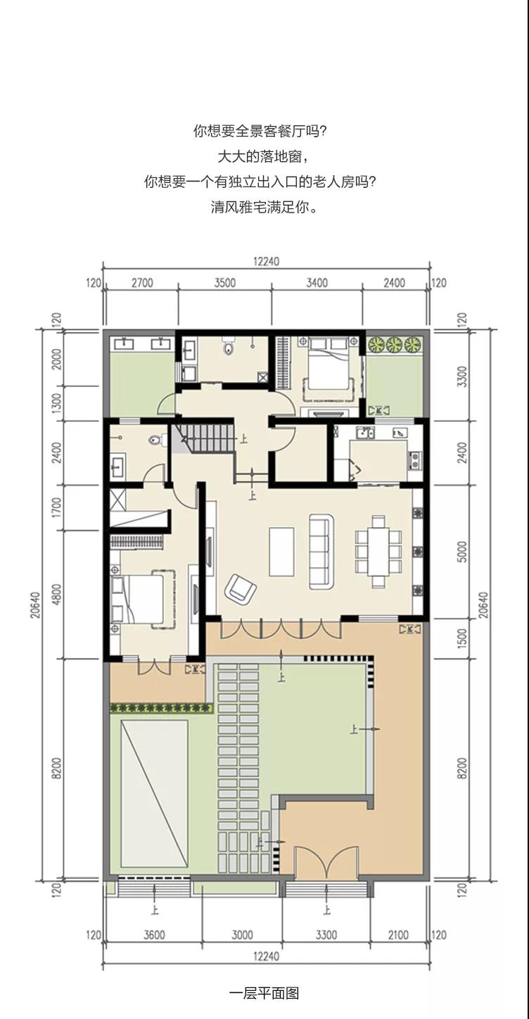
别墅信息:
别墅开间:12.2米
别墅进深:20.6米
占地面积:251平方米
建筑面积:274平方米
建筑结构:砖混结构
主体造价:38万元
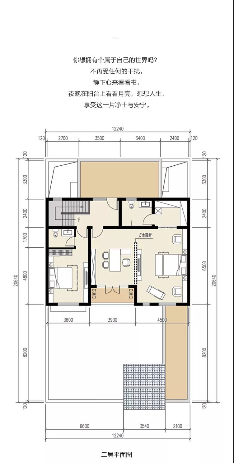
室内布局:


转载请注明出自轩鼎别墅设计:://www.lemeizhai.com/index.asp