现在有钱人越来越多,返乡建房的人也越来越多,一个村总有那么几栋百万级别的别墅,都是村里羡慕的对象,但是对于大多数农村建房者来说,能建造百万级别墅的不太多,也不太现实,今天推荐一款造价80万左右的="://www.lemeizhai.com/Picture.asp?PicClassID=91" target="_self" style="text-decoration: underline; font-family: 微软雅黑, "Microsoft YaHei"; font-size: 36px;">三层别墅设计,虽然造价没有到达百万但是气质,外观丝毫不比百万级别墅差。
实际效果:




基本信息:
占地面积:140㎡
别墅风格: 欧式
建筑面积:421㎡
建筑占地:13m×10.8m
预估造价:80.0万
开 间:13m
室内展示图:

一层平面图:玄关、客厅、餐厅、厨房、卧室、公卫

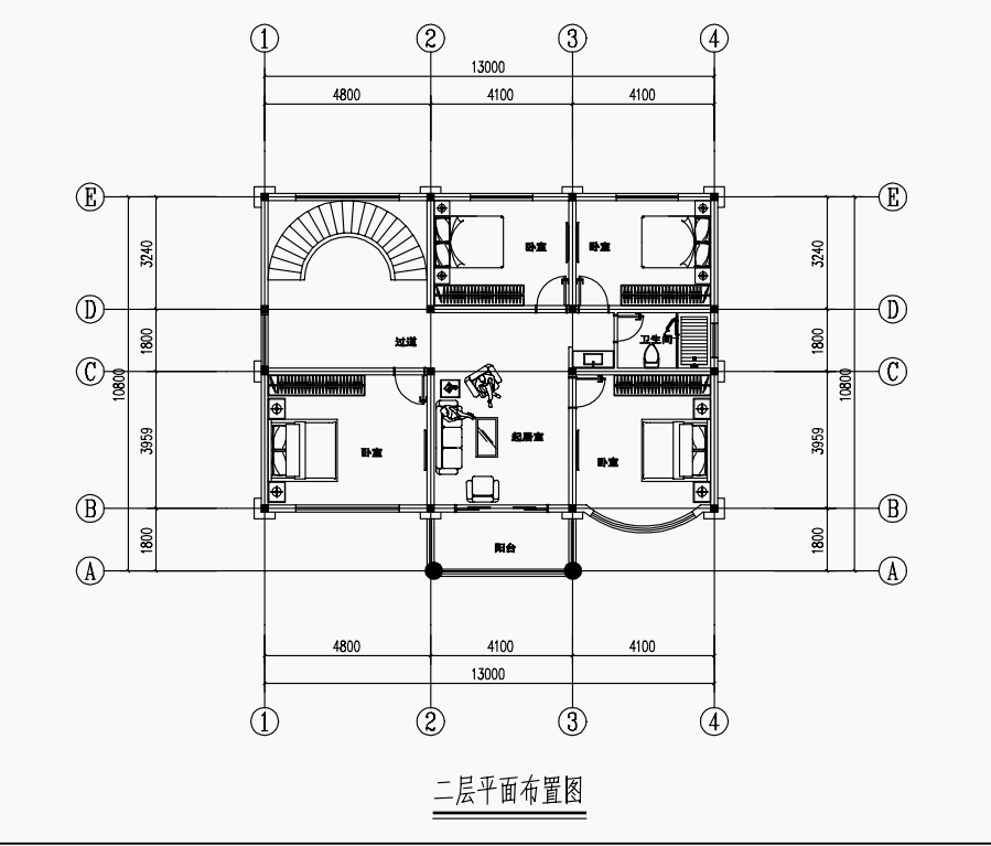
二层平面图:起居室、4间卧室、公卫、阳台。

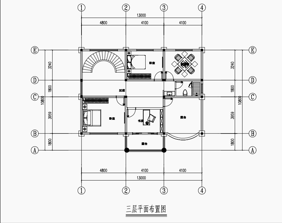
三层平面图:2间卧室、书房、棋牌室、阳台、露台。露台开阔视野,用心打造一番是非常享受的休闲之地。
转载请注明出自轩鼎别墅设计:://www.lemeizhai.com/index.asp