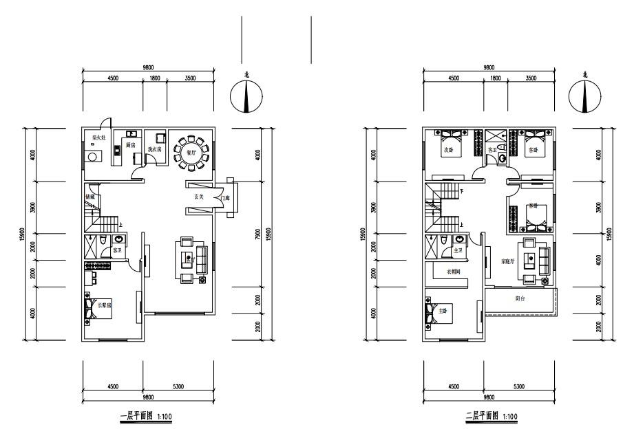
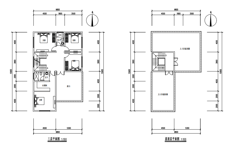
农村建房子首先要以实用为主,毕竟房子要住一辈子,花了大价钱,却建个不实用的房子,太划不来。今天给大家推荐的这款="://www.lemeizhai.com/index.asp" target="_self">别墅设计,考虑到三代人的住房需求,一次性搞定,所以设计为三层半,欧式风格,既简洁实用,又不容易过时,最重要的是颜值高。
实际效果:

基本信息:
占地尺寸:150㎡
别墅风格: 欧式
建筑面积:350㎡
建筑占地:15m×10m
预估造价:40.0万

室内展示图:


转载请注明出自轩鼎别墅设计:://www.lemeizhai.com/index.asp