返程了,马上就要开启一年的工作了,今年是不是又又又制定了新的小目标呢?既然有了目标那就努力吧,赚钱了别亏待了自己,建一栋好房子买一辆车或着去旅游。今天是星期一轩鼎给大家送波福利,这是一款大气时尚的现代欧式风格的="://www.lemeizhai.com/Picture.asp?PicClassID=88" target="_self" style="font-size: 24px; text-decoration: underline;">二层农村别墅设计图,喜欢的可以联系我们哦。

图纸介绍:

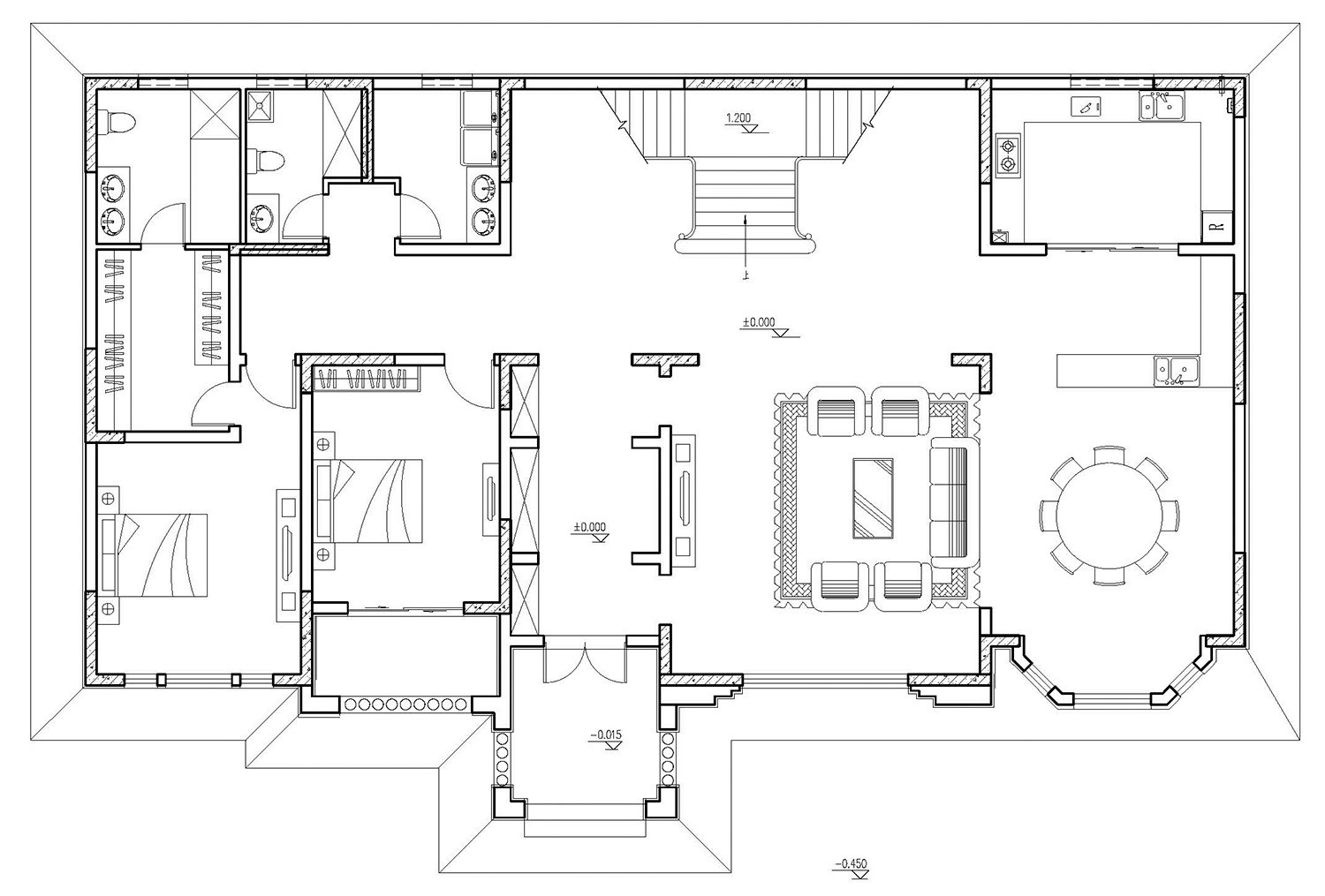
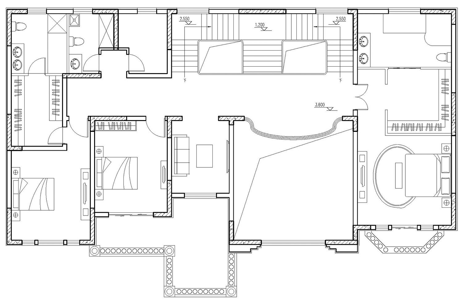
大气的现代欧式风格自建别墅设计图,占地面积:242㎡,预估造价:66.5万左右。
设计功能:
别墅层数: 二层
别墅风格: 欧式
开 间:21.1m
进 深:11.5m
建筑占地:21.1m×11.5m
建筑面积:462㎡
建筑结构:框架结构
主体设计:

客厅、餐厅、厨房、卧室、公卫、阳台、露台。

="://www.lemeizhai.com/index.asp" target="_self">。
="://www.lemeizhai.com/index.asp" target="_self" style="font-family: 楷体, 楷体_GB2312, SimKai; font-size: 24px; text-decoration: underline;">转载请注明出自轩鼎别墅设计:://www.lemeizhai.com/index.asp