我们经常见到挑空客厅,但其实挑空餐厅的设计也是不错的,视野开阔,空间层次感也是比较的强,挑空餐厅能让一家人聚餐时,感觉更加温馨和谐。

这款占地150㎡新农村住宅房屋设计,框架结构,属于简约式新中式的设计,整体浅灰色真石漆搭配褐色的线条勾勒而成,先得沉稳大气。

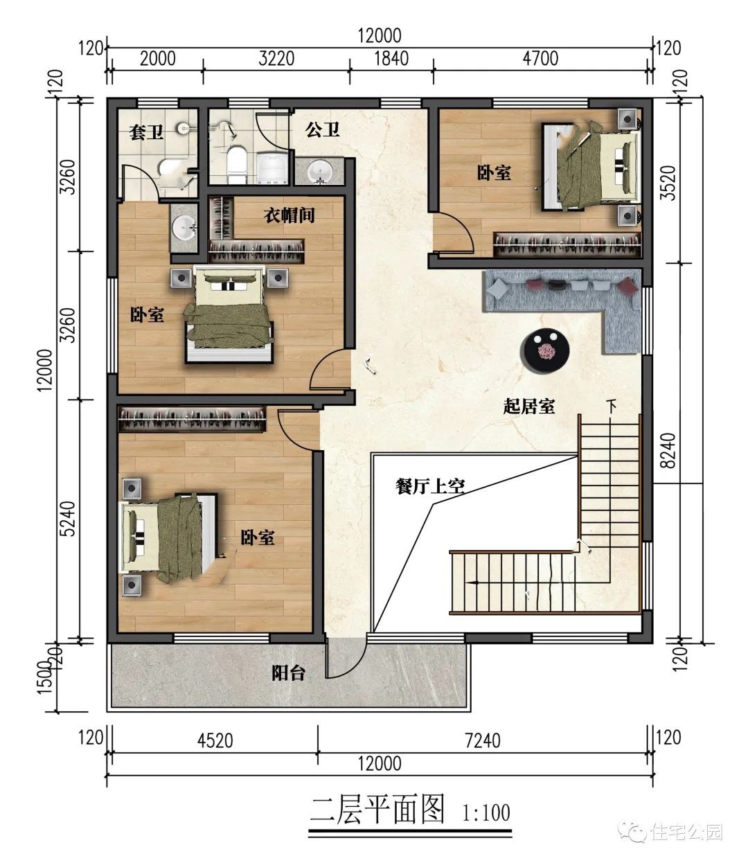
一楼入户则是客餐一体化区域,楼梯在右侧,对日常的生活非常方便。餐厅上空做了挑空的设计,视野更加通透。前后做了双入户门的设计,南北通风效果好,出入方便,清理日常的垃圾或者择菜等,让室内更加干净整洁。一间套卧作为老人卧室,搭配衣帽间、套卫设计,家人居住舒适性进一步提升。

二楼一共有三间卧室,能满足一家人对居住的不同需求,同时也搭配了起居室的空间区域,家人的居住环境更惬意,生活更加的舒适。南侧大阳台,多功能设计。
