青砖白墙黑瓦的="://www.lemeizhai.com/Picture.asp?PicClassID=88" target="_self" style="font-size: 24px; text-decoration: underline;">二层别墅设计,这是一款湖南刘总定制的="://www.lemeizhai.com/search.asp?SearchType=Software&imageField.x=44&imageField.y=30&SearchKey=%D0%C2%D6%D0%CA%BD" target="_self" style="font-size: 24px; text-decoration: underline;">新中式别墅设计,虽然是二层但空间感好,不压抑不拥挤。主体造价40万左右,老人房、儿童房、客厅,一应俱全。

别墅层数: 二层
别墅风格: 中式
占地面积:127㎡
开 间:14.3m
进 深:8.9m
建筑占地:14.3m×8.9m
建筑面积:235㎡
主体造价:29.0~34.0万
建筑结构:砖混结构


主体设计:

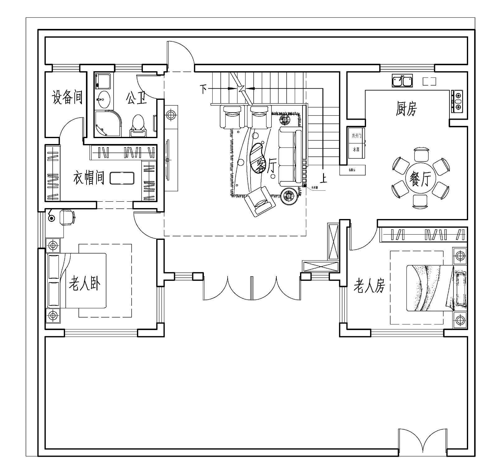
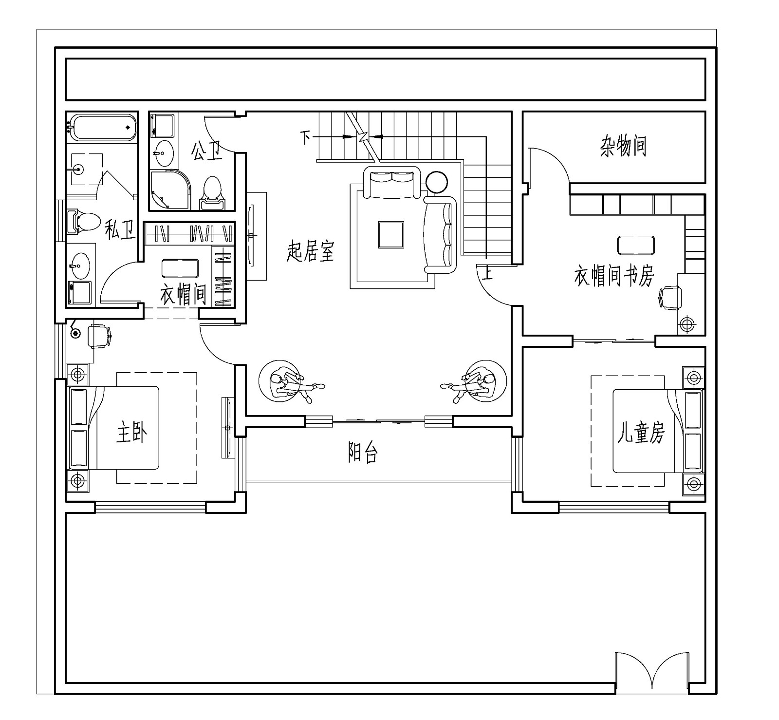
客厅、餐厅、厨房、卧室、公卫、阳台、露台。

。
="://www.lemeizhai.com/index.asp" target="_self" style="font-family: 楷体, 楷体_GB2312, SimKai; font-size: 24px; text-decoration: underline;">转载请注明出自轩鼎别墅设计:://www.lemeizhai.com/index.asp