什么是好房子,可能有人会说,好看的、大气的、舒适的、豪华的,但要我说舒适温馨的才是好房子!今天给大家推荐的是胡总的新中式别墅案例,这款="://www.lemeizhai.com/Picture.asp?PicClassID=91" target="_self" style="font-size: 24px; text-decoration: underline;">别墅设计温馨舒适,有酒窖、健身房、和地下影院。来看看吧

别墅层数: 三层
别墅风格: 中式
占地面积:192㎡
开 间:14.4m
进 深:13.4m
建筑占地:14.4m×13.4m
建筑面积:690㎡
主体造价:113.0~118.0万
建筑结构:砖混结构


主体设计:

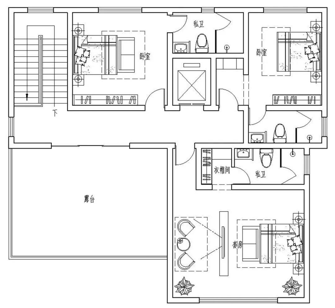
客厅、餐厅、厨房、卧室、公卫、阳台、露台。

。


转载请注明出自轩鼎别墅设计:://www.lemeizhai.com/index.asp