现代风格的别墅没有复杂的装饰,通过简单的设计就能非常养眼。今天小编给大家推荐的是框架结构的="://www.lemeizhai.com/Picture.asp?PicClassID=91" target="_self" style="font-size: 24px; text-decoration: underline;">三层别墅设计,虽然是小小的三层但房间足够,人多的家庭也适用。

别墅层数: 三层
别墅风格: 现代
占地面积:156㎡
开 间:12.1m
进 深:12.9m
建筑占地:12.1m×12.9m
建筑面积:553㎡
主体造价:81.0~86.0万
建筑结构:框架结构


主体设计:

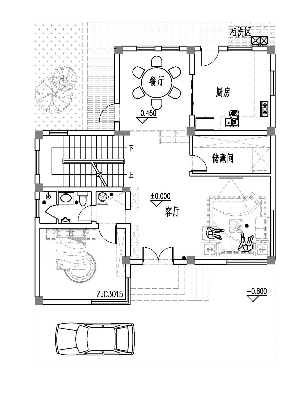
客厅、餐厅、厨房、卧室、公卫、阳台、露台。

。

转载请注明出自轩鼎别墅设计:://www.lemeizhai.com/index.asp