一般的宅基地大小都差不多,建一栋280㎡的别墅完全没有问题。家住湖北的鲁总是一个热爱生活的人,找到我们想要建一栋="://www.lemeizhai.com/Picture.asp?PicClassID=88" target="_self" style="font-size: 24px; text-decoration: underline;">二层小别墅,这栋小别墅是给父母居住的。接到鲁总的订单,我们的设计师刘工是这样设计的,采用红砖做半包围式的庭院侧边开门,别墅是现代风格,墙体是文化石和真石漆装饰,设计有两扇门,别墅右侧留有搭建阳光房的空间。这款别墅造价最高预估40万,喜欢的收藏。

别墅层数: 二层
别墅风格: 现代
占地面积:280㎡
开 间:20m
进 深:14m
建筑占地:20m×14m
建筑面积:338㎡
主体造价:32.2~37.2万
建筑结构:砖混结构


主体设计:

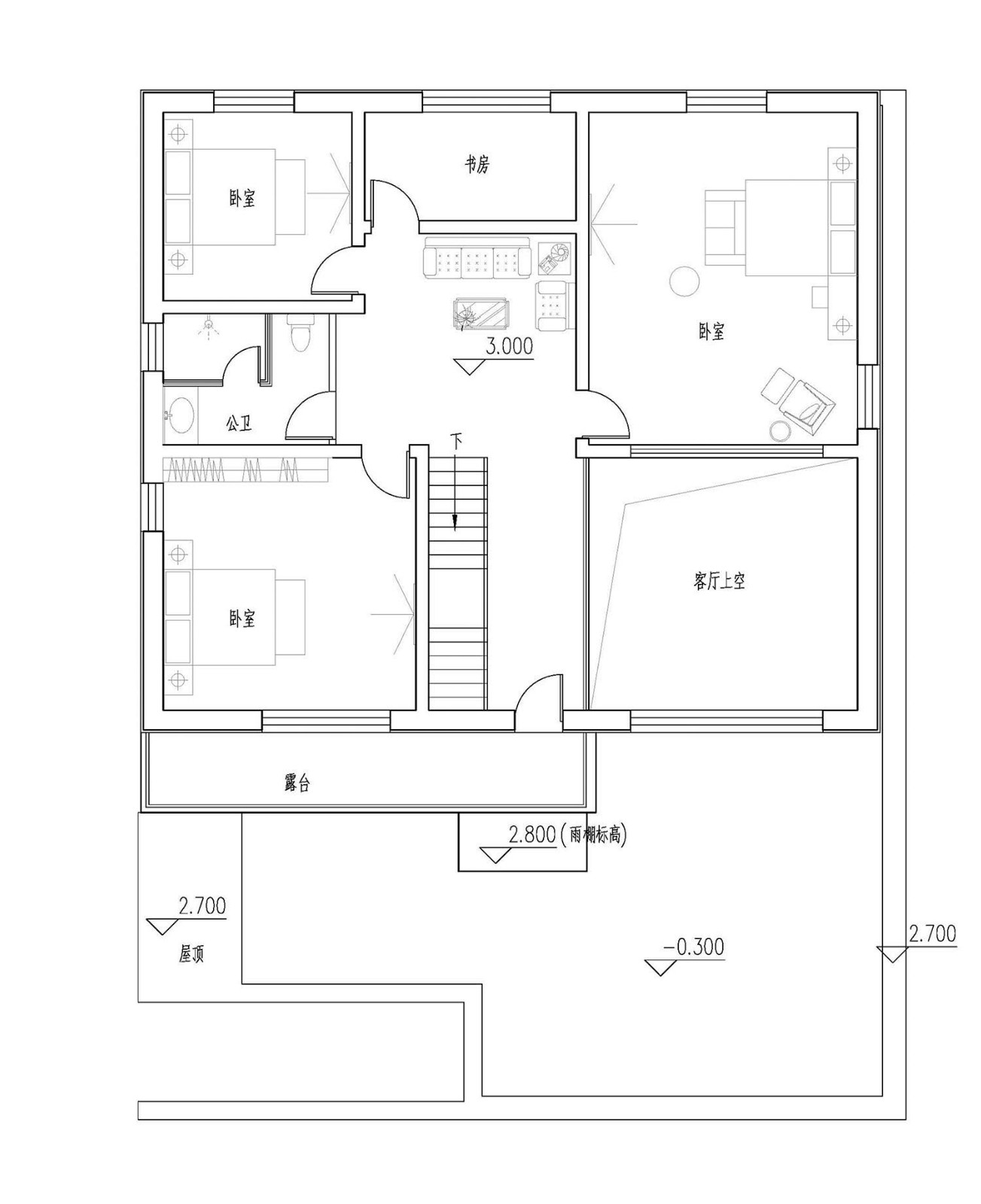
客厅、餐厅、厨房、卧室、公卫、阳台、露台。

。
="://www.lemeizhai.com/index.asp" target="_self" style="font-family: 楷体, 楷体_GB2312, SimKai; font-size: 24px; text-decoration: underline;">转载请注明出自轩鼎别墅设计:://www.lemeizhai.com/index.asp